home page > Annunci immobiliari in Italia > Emilia-Romagna > Ravenna > Castel Bolognese > Case e ville indipendenti in vendita > Scheda immobile

Case e ville indipendenti in vendita a Castel Bolognese

COMPILA IL MODULO SOTTOSTANTE PER RICEVERE MAGGIORI INFORMAZIONI







Invia la richiesta ad altre agenzie
Accetto il trattamento dei miei dati



Coldwell banker prime properties

Viale virgilio 4
47838 Riccione (RN)

05411412040    3450953251

Castel Bolognese
Prezzo: € 6.300.000
82000



Descrizione:
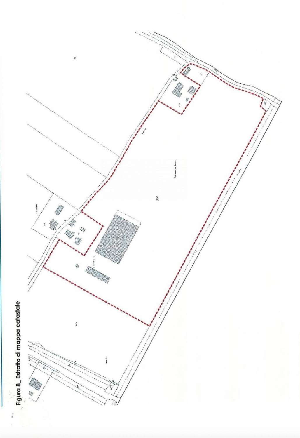
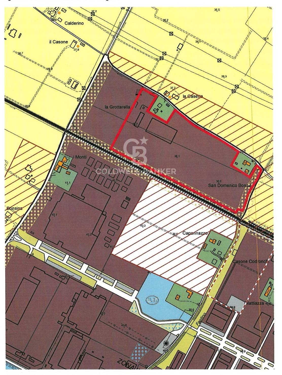
Importante complesso logistico-industriale a reddito in vendita castel bolognese (ra)nel cuore della zona industriale di castel bolognese, in posizione strategica tra bologna e ravenna, proponiamo in vendita un ampio complesso industriale e logistico di grande valore strategico, ideale per investitori alla ricerca di un asset già a reddito e con interessanti prospettive di crescita.la proprietà si estende su un'area complessiva di oltre 82.000 mq e comprende un articolato complesso immobiliare composto da:un capannone industriale ad uso magazzino di circa 3.845 mquna palazzina uffici con servizi di circa 442 mquna tettoia di circa 489 mquna pesa per autocarrivaste aree esterne operative pavimentate, ideali per movimentazione merci, logistica e stoccaggio.le superfici esterne sono particolarmente generose e consentono la gestione efficiente dei flussi di mezzi pesanti, rendendo l'immobile perfettamente adatto a operatori logistici, distributivi o produttivi.il complesso si presenta in condizioni complessivamente buone e funzionali all'utilizzo industriale. Gli ampi piazzali, l'accessibilità per i mezzi pesanti e la presenza di infrastrutture come la pesa camion rappresentano elementi di grande valore per attività che richiedono spazi logistici efficienti.dal punto di vista urbanistico, l'area ricade in ambito produttivo specializzato, destinato ad attività industriali e logistiche, con importanti superfici pertinenziali che garantiscono grande flessibilità operativa.un elemento particolarmente interessante dell'operazione è rappresentato dal fatto che l'immobile è attualmente locato con un canone annuo di €600.000, offrendo quindi un rendimento immediato e stabile, caratteristica che rende questa proprietà particolarmente attrattiva per investitori istituzionali o privati.a rafforzare ulteriormente il valore strategico dell'investimento contribuisce inoltre la prossima apertura del nuovo casello autostradale di castel bolognese, che sorgerà a soli 3 km dal complesso. Questa infrastruttura migliorerà significativamente l'accessibilità dell'area e aumenterà nel tempo l'attrattività logistica e il valore dell'immobile.grazie alla posizione logistica centrale tra bologna e ravenna, alla grande estensione del lotto, alla redditività immediata e alle prospettive di valorizzazione legate alle nuove infrastrutture, questa proprietà rappresenta un'opportunità di investimento rara nel mercato immobiliare industriale dell'emilia-romagna.informazioni complete, documentazione tecnica e dettagli sul contratto di locazione disponibili su richiesta.




Caratteristiche immobile:
Codice inserzione: 1773639372
Rif. Annuncio: CBI099-1008-520813
Provincia: Ravenna
Comune: Castel Bolognese
Superficie (Mq) : 82000 Mq.
Tipo immobile: Case e ville indipendenti
Stato immobile: recente
Stato al rogito: Libero

Costi:
Prezzo € 6.300.000


Efficienza energetica:
Riscaldamento: autonomo