home page > Annunci immobiliari in Italia > Emilia-Romagna > Ravenna > Cervia > appartamenti in vendita > Scheda immobile

Appartamento in vendita a Cervia

COMPILA IL MODULO SOTTOSTANTE PER RICEVERE MAGGIORI INFORMAZIONI







Invia la richiesta ad altre agenzie
Accetto il trattamento dei miei dati



Agenzia immobiliare nuova sistema casa

Viale g. Matteotti 77/79
47121 Forlì (FC)

0543540586    Riferimenti: Giancarlo Appi

Cervia
Prezzo: € 320.000
2
2
Piano terra
1



Descrizione:
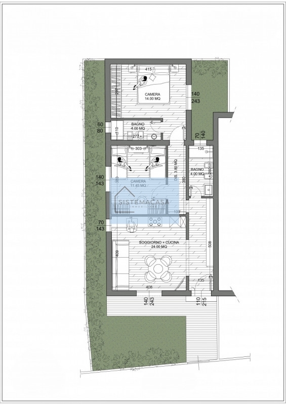
A pinarella di cervia, a circa 200 metri dal mare e dalla pineta, proponiamo trilocale al piano terra completamente ristrutturato e con ingresso indipendente. Edificio di pochissime unità, anch'esso completamente ristrutturato.l'immobile è composto come segue:- ingresso- soggiorno con cucina a vista- doppio bagno finestrato- camera matrimoniale con accesso al giardino- camera singola ampia (11,5 mq)completano la proprietà il posto auto privato ed il giardino ad uso esclusivo di circa 50 mq.possibile scelta di materiali e personalizzazione delle finiture di pavimenti, rivestimenti, sanitari, arredo bagno ed infissi.possibilità di acquisto anche al grezzo.consegna dicembre 2026.per informazioni e visite contattare:giancarlo




Caratteristiche immobile:
Codice inserzione: 1772077653
Rif. Annuncio: CER 1
Provincia: Ravenna
Comune: Cervia
Zona: Pinarella  
Tipo immobile: Appartamento
Stato immobile: ristrutturato
Piano: Piano terra
Camere: 2
Posti auto scoperti: 1 posto auto
Bagni: 2

Costi:
Prezzo € 320.000


Efficienza energetica:
Riscaldamento: autonomo