home page > Annunci immobiliari in Italia > Emilia-Romagna > Ravenna > Cervia > appartamenti in vendita > Scheda immobile

Appartamento in vendita a Cervia

COMPILA IL MODULO SOTTOSTANTE PER RICEVERE MAGGIORI INFORMAZIONI







Invia la richiesta ad altre agenzie
Accetto il trattamento dei miei dati



Agenzia immobiliare nuova sistema casa

Viale g. Matteotti 77/79
47121 Forlì (FC)

0543540586    Riferimenti: Giancarlo Appi

Cervia
Prezzo: info in agenzia
A4
2
2
112
98
1



Descrizione:
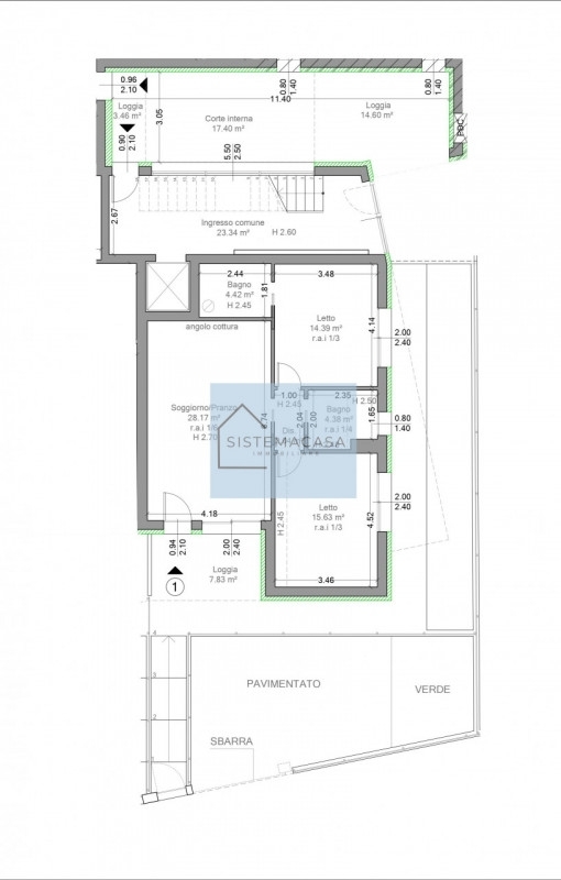
Nella zona esclusiva della nuova darsena, tra cervia e milano marittima, proponiamo ampio trilocale di più di 110 mq commerciali, nuovo in classe a4, con posto auto assegnato e cantina privata. L'immobile sorge al piano terra in un complesso residenziale di lusso in classe a4, dotato di ascensore e creato rispettando i più alti standard costruttivi per efficienza energetica, qualità dei materiali e ricercatezza delle finiture.la composizione dei locali è la seguente:- ingresso tramite portone blindato antieffrazione, funzione di insonorizzazione e telaio in lamiera d'acciaio prefilmata- zona living (28 mq circa) con cucina a vista ed ampia vetrata di accesso alla zona esterna- disimpegno e doppia camera matrimoniale (15,5 mq e 14,5 mq circa) in gres porcellanato o, a scelta, pavimento in legno di rovere a listoni con formato e colore a scelta- doppio bagno (entrambi di 4,5 mq circa) con rivestimenti su misura, sanitari sospesi e lavandino di design, termoarredo e piatto doccia custom con funzione punti luce e cromoterapia- zona esterna pavimentata/verde (100 mq circa). Illuminazione tramite punti luce di design, presa per corrente e rubinetto per acqua- posto auto assegnato con sbarra / dissuasore carrabile automatizzato- cantina (8 mq circa) situata al piano terral'immobile riporta i più alti standard di finiture disponibili sul mercato, tra le quali:- cappotto esterno termico in grafite e finiture interne ed esterne in intonaco di alto pregio- impermeabilizzazioni con massimo livello di isolamento, qualità di materiali e messa in posa per eccellente affidabilità- rivestimenti facciate in materiali compositi di pregio effetto legno con sottostruttura in alluminio- realizzazione soglie e banchine in marmo pregiato nero lucidato in abbinamento ai dettagli degli infissi esterni ed agli elementi di design delle facciate- vano scale e relativi corridoi in gres porcellanato con illuminazione di design a led e profili in alluminio e vetro- impianto fotovoltaico con predisposizione tramite tubo corrugato di colonnina di ricarica per auto elettrica nel proprio posto auto- infissi in lega di alluminio a taglio termico e doppio vetro marchio schüco- impianto di riscaldamento idronico a pompa di calore tramite sistema innovativo mitsubishi electric con tecnologia ad acqua fluido termovettore per riscaldamento tramite sistema a pannelli radianti a pavimento- impianto di raffrescamento in tutti i locali e ventilazione meccanica controllata con apposite bocchette di immissione ed estrazione- installazione impianto domotico connesso di ultima generazione con controllo da remoto tramite app- impianto interno di illuminazione sotto traccia ed incassato, con barre a led di design nei disimpegni e bagni di ciascuna unitàper informazioni e visite contattare:giancarlo




Caratteristiche immobile:
Codice inserzione: 1760409609
Rif. Annuncio: CER 101
Provincia: Ravenna
Comune: Cervia
Zona: Milano Marittima  
Superficie (Mq) : 112 Mq.
Tipo immobile: Appartamento
Stato immobile: nuovo
Anno costruzione/ristrutturazione: 2025
Piano: Piano terra
Camere: 2
Posti auto scoperti: 1 posto auto
Bagni: 2

Costi:
Prezzo info in agenzia


Efficienza energetica:
Classe energetica: A4
Indice di prestazione energetica (EPgl): 0.4 kWh/mq annui
Riscaldamento: autonomo a pavimento