home page > Annunci immobiliari in Italia > Emilia-Romagna > Ravenna > Cervia > Turistici in vendita > Scheda immobile

Turistici in vendita a Cervia

COMPILA IL MODULO SOTTOSTANTE PER RICEVERE MAGGIORI INFORMAZIONI







Invia la richiesta ad altre agenzie
Accetto il trattamento dei miei dati



Immobiliare maranello

Via giovanni verga 12
41053 Maranello (MO)

3461848313    Riferimenti: Luca Sciasci

Cervia
Prezzo: € 420.000
A3
1
1
69
1
1



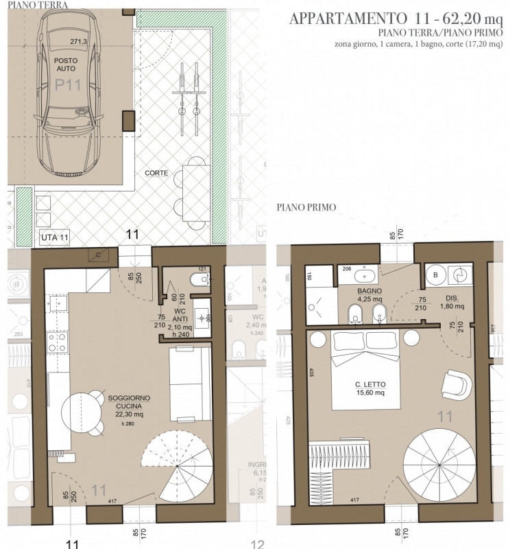
Descrizione:
Bilocali esclusivi: stile, storia e mare a due passinel cuore del centro storico di cervia, a soli 800 metri dal mare, proponiamo bilocali unici, pensati per chi desidera vivere in una cornice esclusiva senza rinunciare al comfort moderno.spazi progettati con cura, finiture di pregio e ampie possibilità di personalizzazione ti permettono di creare la tua casa su misura.ogni unità offre luminosi ambienti open space, molte con spazi esterni privati, perfetti per godersi l'atmosfera rilassata della città.a partire da 69 mq e 420.000 euro, queste abitazioni rappresentano un'opportunità irripetibile per vivere in una delle zone più affascinanti di cervia. Posto auto o garage privato inclusi.� contattaci subito per maggiori informazioni e per scoprire il tuo futuro appartamento: le migliori soluzioni sono già in prenotazione!




Caratteristiche immobile:
Codice inserzione: 1758596356
Rif. Annuncio: MIRAPRACE02
Provincia: Ravenna
Comune: Cervia
Zona: Cervia Centro  
Superficie (Mq) : 69 Mq.
Tipo immobile: Turistici
Stato immobile: nuovo
Anno costruzione/ristrutturazione: 2026
Piano: 1
Camere: 1
Posti auto scoperti: 1 posto auto
Bagni: 1

Costi:
Prezzo € 420.000


Efficienza energetica:
Classe energetica: A3
Riscaldamento: autonomo a pavimento