home page > Annunci immobiliari in Italia > Emilia-Romagna > Ravenna > Faenza > appartamenti in vendita > Scheda immobile

Appartamento in vendita a Faenza

COMPILA IL MODULO SOTTOSTANTE PER RICEVERE MAGGIORI INFORMAZIONI







Invia la richiesta ad altre agenzie
Accetto il trattamento dei miei dati



Il labirinto immobiliare snc

Coso matteotti, 22
48018 Faenza (RA)

054626805

Faenza
Prezzo: € 260.000
2
1
86
Piano terra



Descrizione:
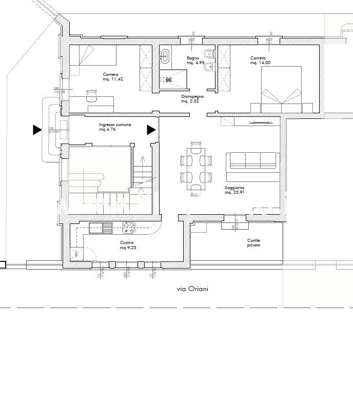
Faenza, posizione strategica: vicino alla stazione, ai servizi e al centro cittadino. Prossima ristrutturazione di una splendida palazzina storica, ex fabbrica minardi, all'angolo tra via oriani e via salvolini dove proponiamo sei soluzioni di altissimo livello. Tra le proposte, un trilocale al piano terra sviluppato tutto su di un piano. L' unità si compone da ingresso su soggiorno con patio privato, cucina separata, disimpegno notte, ampia camera singola, camera matrimoniale entrambe in affaccio alla corte interna, bagno finestrato. Anche in questa unità la pianta è funzionale e razionale, favorendo una distribuzione pratica e fluida degli ambienti. Le ampie finestre, caratteristiche degli edifici storici, valorizzano gli spazi e garantiscono ambienti luminosi. La proprietà include anche una comoda cantina al piano interrato. Il capitolato prevede finiture moderne di livello, che si integrano armoniosamente con il carattere storico dell'edificio grazie a materiali scelti con cura. Possibilità di acquisto posti auto situati internamente alla corte.immagini di rendering.contattaci per ulteriori dettagli, planimetrie e per scegliere insieme le finiture del capitolato.rif. Unità a4




Caratteristiche immobile:
Codice inserzione: 1764565590
Rif. Annuncio: 1892
Provincia: Ravenna
Comune: Faenza
Superficie (Mq) : 86 Mq.
Tipo immobile: Appartamento
Stato immobile: ristrutturato
Anno costruzione/ristrutturazione: 2026
Piano: Piano terra
Camere: 2
Tipologia giardino : Condominiale
Bagni: 1

Costi:
Prezzo € 260.000
Spese condominiali: € 0


Efficienza energetica:
Riscaldamento: autonomo
Tipologia riscaldamento: energia elettrica