home page > Annunci immobiliari in Italia > Emilia-Romagna > Ravenna > Faenza > appartamenti in vendita > Scheda immobile

Appartamento in vendita a Faenza

COMPILA IL MODULO SOTTOSTANTE PER RICEVERE MAGGIORI INFORMAZIONI







Invia la richiesta ad altre agenzie
Accetto il trattamento dei miei dati



Quimmo agency

Via galileo galilei 6
48018 Faenza (RA)

0299944698

Faenza
Prezzo: € 95.000
G
1
1
67



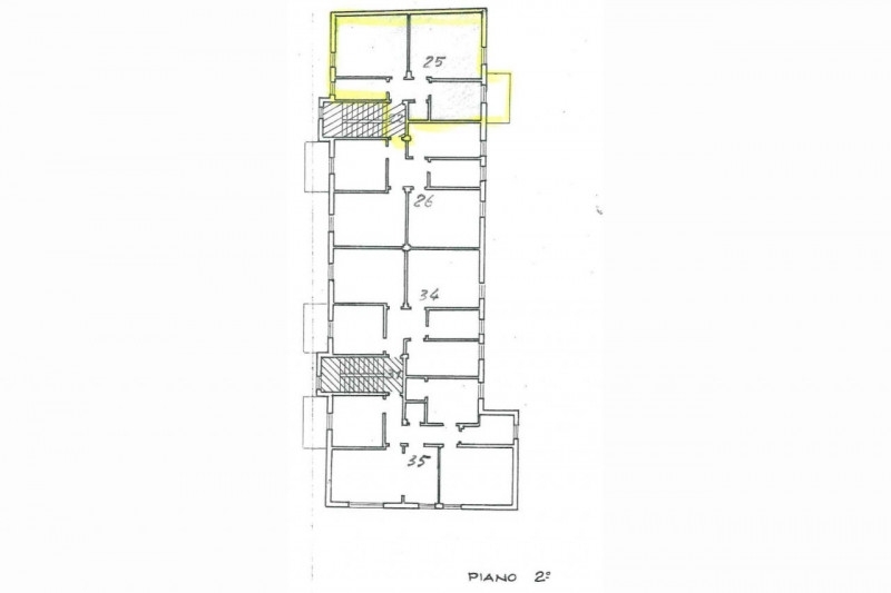
Descrizione:
Quimmo propone in vendita un appartamento di piccole/medie dimensioni, situato in un'ottima zona a pochi passi dal centro città e dalle principali fermate dei mezzi pubblici, come la stazione ferroviaria e le linee di autobus.l'immobile si trova all'interno di una piccola palazzina condominiale, caratterizzata da bassi costi di gestione. Collocato al secondo piano (senza ascensore), offre anche accesso a una corte comune ed una cantina ciclabile condominiale.internamente, l'appartamento si compone di un ingresso che porta a un disimpegno distributivo. Gli spazi includono una sala accogliente, una cucina dotata di affaccio su balcone, un pratico ripostiglio, una camera da letto matrimoniale e un bagno completo di vasca. Con una superficie commerciale di 55 mq, l'immobile è ben progettato e funzionale. Completa la proprietà un comodo garage al piano terra.l'appartamento si presenta in buono stato generale, con impiantistica a norma di legge e certificazioni aggiornate, e dispone di impianti autonomi per una gestione ottimale delle utenze.pronto per essere abitato, questo immobile è ideale sia come prima casa per 1 o 2 persone, sia come opportunità di investimento: la redditività prevista supera il 6%, rendendolo un'opzione interessante per chi desidera diversificare il proprio portafoglio.le chiavi sono disponibili presso l'agenzia. Non lasciarti sfuggire questa occasione! contattaci per maggiori informazioni e per prenotare una visita.




Caratteristiche immobile:
Codice inserzione: 1760583841
Rif. Annuncio: 2537165
Provincia: Ravenna
Comune: Faenza
Superficie (Mq) : 67 Mq.
Tipo immobile: Appartamento
Stato immobile: usato
Camere: 1
Bagni: 1
Terrazze: 1

Costi:
Prezzo € 95.000


Efficienza energetica:
Classe energetica: G
Riscaldamento: autonomo