home page > Annunci immobiliari in Italia > Emilia-Romagna > Ravenna > Lugo > Rustici in vendita > Scheda immobile

Rustici in vendita a Lugo

COMPILA IL MODULO SOTTOSTANTE PER RICEVERE MAGGIORI INFORMAZIONI







Invia la richiesta ad altre agenzie
Accetto il trattamento dei miei dati



Golden/re servizi immobiliari

Via corbari 50
48018 Faenza (RA)

0546562085    Riferimenti: Jessica Ferrini

Lugo
Prezzo: € 109.000
1
450



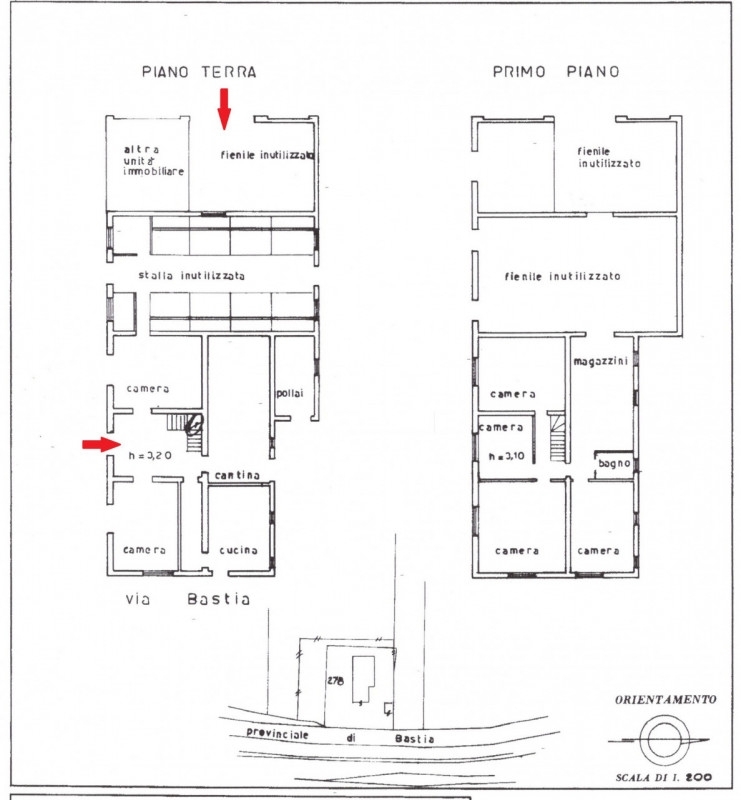
Descrizione:
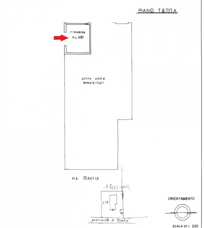
Se stai cercando un'opportunità unica per realizzare la casa dei tuoi sogni immersa nel verde, questo casolare di campagna è ciò che fa per te! situato in una posizione tranquilla, a pochi minuti di distanza da lugo, questo immobile offre ampi spazi e infinite possibilità di personalizzazione. Descrizione dell'immobile: il casolare si sviluppa su due piani. Al piano terra abbiamo ingresso, cucina abitabile, soggiorno, camera e una cantina. Salendo al piano primo, abbiamo quattro camere da letto spaziose e un bagno. Inoltre, un magazzino al piano superiore offre ulteriore spazio. Questo casolare dispone anche di un fienile a doppio volume, con un piano terra precedentemente utilizzato come stalla e un piano superiore adibito a fienile, che può essere trasformato in un'accogliente area living, uno studio o uno spazio per hobby. Completa la proprietà un garage al piano terra.le caratteristiche principali di questa soluzione sono: superficie complessiva ampia, ideale per famiglie numerose o artigiani in cerca di spazio per il proprio lavoro. Giardino pertinenziale di circa 1000 mq, perfetto per un orto o per godere di momenti all'aperto in famiglia.completamente indipendente, garantendo privacy e tranquillità. La posizione è strategica, immersa nella campagna ma a breve distanza dai servizi e dalle comodità offerte dal centro di lugo. Questo casolare rappresenta un'ottima opportunità per chi desidera un progetto di ristrutturazione personalizzato, trasformando questo spazio in una bellissima residenza. Prezzo trattabile. non perdere l'occasione di visitare questa proprietà! contattaci per maggiori informazioni e per fissare un appuntamento. Ancora per tutto il 2025 ti scontiamo l'iva.




Caratteristiche immobile:
Codice inserzione: 1761187475
Rif. Annuncio: RE130
Provincia: Ravenna
Comune: Lugo
Superficie (Mq) : 450 Mq.
Tipo immobile: Rustici
Stato immobile: usato da riattare
Anno costruzione/ristrutturazione: 1960
Garage: Singolo
Bagni: 1

Costi:
Prezzo € 109.000


Efficienza energetica: