home page > Annunci immobiliari in Italia > Emilia-Romagna > Reggio nell'Emilia > Correggio > Case e ville indipendenti in vendita > Scheda immobile

Case e ville indipendenti in vendita a Correggio

COMPILA IL MODULO SOTTOSTANTE PER RICEVERE MAGGIORI INFORMAZIONI







Invia la richiesta ad altre agenzie
Accetto il trattamento dei miei dati



Dimensione casa sas

Via peruzzi 22p
41012 Carpi (MO)

059.9770706

Correggio
Prezzo: € 105.000
G
4
2
180
Piano terra



Descrizione:
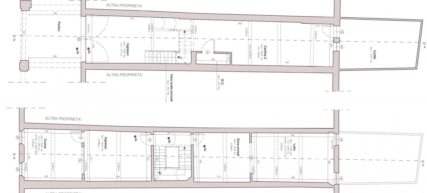
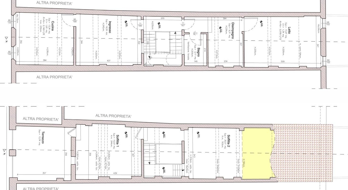
Rif 3401 dimensione casa propone in vendita esclusiva terratetto completamente da ristrutturare, in pieno centro storico a correggio, in zona caratteristica e circondata da strutture storiche. L'immobile si rende particolarmente interessante per la presenza di graziosa corte al piano terra e terrazzino con affaccio sui tetti all'ultimo piano. Attualmente già composta da due unità abitative . Nella vendita è incluso progetto di ristrutturazione completo già approvato dal comune di correggio. Ideale per chi cerca una soluzione da adibire eventualmente anche a ufficio/studio. Disponibile da subito. classe energetica: g




Caratteristiche immobile:
Codice inserzione: 1772592673
Rif. Annuncio: 3401
Provincia: Reggio nell'Emilia
Comune: Correggio
Superficie (Mq) : 180 Mq.
Tipo immobile: Case e ville indipendenti
Stato immobile: usato da riattare
Piano: Piano terra
Camere: 4
Bagni: 2
Terrazze: 1

Costi:
Prezzo € 105.000


Efficienza energetica:
Classe energetica: G
Riscaldamento: autonomo