home page > Annunci immobiliari in Italia > Emilia-Romagna > Reggio nell'Emilia > Sant'Ilario d'Enza > Negozi uffici capannoni in vendita > Scheda immobile

Negozi uffici capannoni in vendita a Sant'Ilario d'Enza

COMPILA IL MODULO SOTTOSTANTE PER RICEVERE MAGGIORI INFORMAZIONI







Invia la richiesta ad altre agenzie
Accetto il trattamento dei miei dati



Immobiliare s. Ilario di pini patrizia

Via risorgimento 2b
42049 Sant'Ilario d'Enza (RE)

3488218912    Riferimenti: Patrizia Pini

Sant'Ilario d'Enza
Prezzo: € 60.000
F
65
Piano terra



Descrizione:
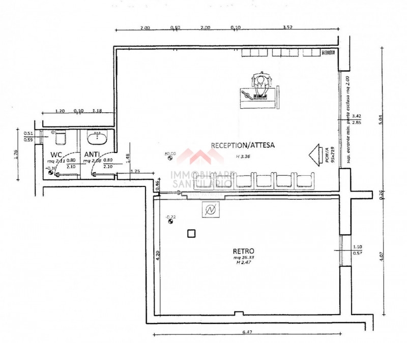
Fr 577 s.ilario € 60.000 nella zona sud del paese proponiamo in vendita un immobile ad uso commercialeufficio di circa 65 mq. Suddiviso in 2 ambienti. il primo è il negozioufficio vero e proprio h 3,30 di circa 40 mq, il secondo è ad uso magazzino h. 2,50 di circa 27,00 mq, più bagno ed antibagno. Attualmente è a reddito fino a giugno 2026. Le spese condominiali sono contenute circa 3040 € al mese ape e.




Caratteristiche immobile:
Codice inserzione: 1772509271
Rif. Annuncio: Ofr 577 S.ILARI
Provincia: Reggio nell'Emilia
Comune: Sant'Ilario d'Enza
Superficie (Mq) : 65 Mq.
Tipo immobile: Negozi uffici capannoni
Anno costruzione/ristrutturazione: 1990
Piano: Piano terra

Costi:
Prezzo € 60.000


Efficienza energetica:
Classe energetica: F
Indice di prestazione energetica (EPgl): 56.68 kWh/mc annui
Riscaldamento: autonomo