home page > Annunci immobiliari in Italia > Emilia-Romagna > Rimini > Cattolica > appartamenti in vendita > Scheda immobile

Appartamento in vendita a Cattolica

COMPILA IL MODULO SOTTOSTANTE PER RICEVERE MAGGIORI INFORMAZIONI







Invia la richiesta ad altre agenzie
Accetto il trattamento dei miei dati



Misano adriatico

Via della stazione 2/d
47843 Misano Adriatico (RN)

05411792767

Cattolica
Prezzo: € 370.000
2
2
88



Descrizione:
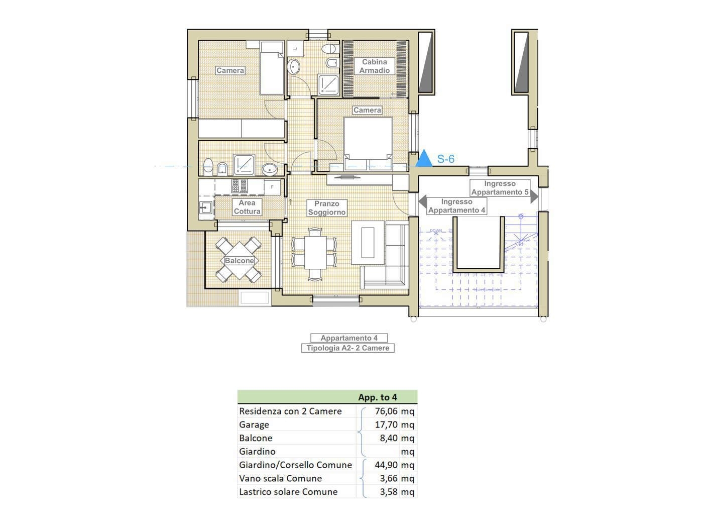
In esclusiva! a cattolica - zona residenzialeriferimento: mi013/a04progettato all'interno della nuova costruzione in via olivieri in classe energetica a4, questo raffinato trilocale unisce un layout funzionale e ben distribuito alla luminosità e al comfort di un ambiente moderno e ad alta efficienza.l'appartamento, situato al secondo piano, è composto da zona giorno con cucina separata e da un balcone. La zona notte comprende due camere da letto, una delle quali dotata di una comoda cabina armadio, e due bagni, offrendo soluzioni abitative perfette per la vita di ogni giorno.dotazioni tecniche di alto livello:-riscaldamento a pavimento-ventilazione meccanica controllata (vmc)-impianto fotovoltaico connesso-classe energetica a4possibilità di acquistare garage con posto auto riservato.




Caratteristiche immobile:
Codice inserzione: 1762303289
Rif. Annuncio: MI013/A04VRG
Provincia: Rimini
Comune: Cattolica
Superficie (Mq) : 88 Mq.
Tipo immobile: Appartamento
Stato immobile: nuovo
Camere: 2
Tipologia giardino : Condominiale
Bagni: 2

Costi:
Prezzo € 370.000


Efficienza energetica: