home page > Annunci immobiliari in Italia > Emilia-Romagna > Rimini > Riccione > appartamenti in vendita > Scheda immobile

Appartamento in vendita a Riccione

COMPILA IL MODULO SOTTOSTANTE PER RICEVERE MAGGIORI INFORMAZIONI







Invia la richiesta ad altre agenzie
Accetto il trattamento dei miei dati



Atlante immobiliare srl

Viale galliano 36
47838 Riccione (RN)

0541600569    Riferimenti: Manuel

Riccione
Prezzo: € 622.000
A4
2
1
100
2



Descrizione:
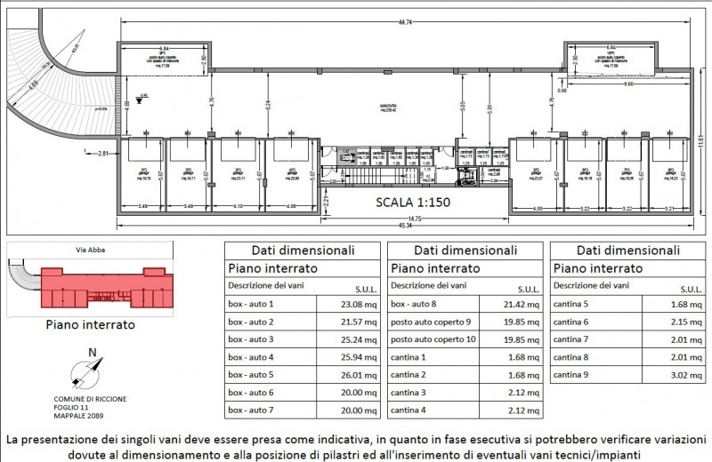
Riccione centro adiacente viale ceccarini mare a soli 300m dal porto canaleacquisto con agevolazione sisma bonusnuovo esclusivo complesso residenziale dal design moderno in classe energetica a4appartamento 3a a piano secondoingresso su luminoso openspace con zona living e cucina ad angolo adiacente a balcone con loggia abitabile.a servizio del soggiorno 2 spaziosi balconi con loggia.2 camere da letto molto luminose entrambe servita da balcone.1 bagno con finestra a completamento della zona notte.finiture di pregio e dotazioni per ottenere la massima efficienza energetica da capitolato.garage e posto auto a parte con possibilità di scelta.




Caratteristiche immobile:
Codice inserzione: 1758249818
Rif. Annuncio: 102AP 3A P.Secondo
Provincia: Rimini
Comune: Riccione
Superficie (Mq) : 100 Mq.
Tipo immobile: Appartamento
Stato immobile: nuovo
Anno costruzione/ristrutturazione: 2024
Piano: 2
Camere: 2
Bagni: 1
Terrazze: 2

Costi:
Prezzo € 622.000


Efficienza energetica:
Classe energetica: A4
Riscaldamento: autonomo a pavimento