home page > Annunci immobiliari in Italia > Emilia-Romagna > Rimini > Riccione > appartamenti in vendita > Scheda immobile

Appartamento in vendita a Riccione

COMPILA IL MODULO SOTTOSTANTE PER RICEVERE MAGGIORI INFORMAZIONI







Invia la richiesta ad altre agenzie
Accetto il trattamento dei miei dati



Agenzia immobiliare adriacasa di maria cimino

Via catullo, 9c
47838 Riccione (RN)

0541606986    3492775066    Riferimenti: Cimino Maria Gabriella

Riccione
Prezzo: € 410.000
A4
2
2
75
Piano terra
1



Descrizione:
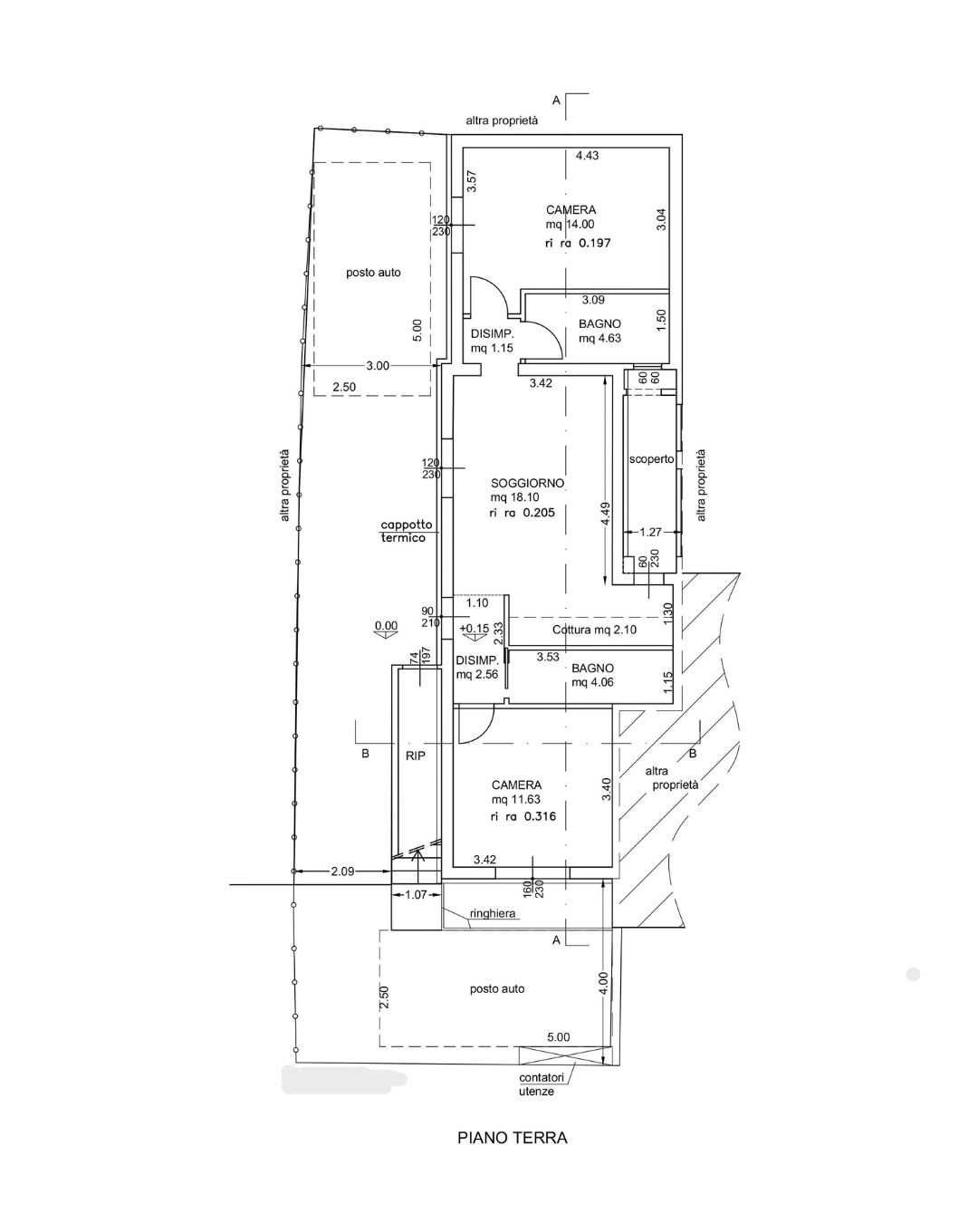
TRILOCALE RISTRUTTURATO, CON CORTE ESTERNA E POSTO AUTO - RICCIONE PAESE - Nel cuore di Riccione, a pochi minuti dal mare, proponiamo in vendita un ampio trilocale al piano terra, parte di una palazzina bifamiliare composta da sole due unità, attualmente oggetto di completa ristrutturazione. L'ingresso si apre su una zona giorno luminosa con angolo cottura, perfetta per vivere gli spazi in modo pratico e accogliente. Due camere da letto e doppi servizi, ideali per garantire comfort e privacy a tutta la famiglia. All'esterno, una corte privata offre uno spazio riservato per i tuoi momenti di relax, mentre il posto auto scoperto completa la comodità della proposta. L'assenza di spese condominiali, la qualità delle finiture e la possibilità di usufruire del bonus acquisto casa ristrutturata rendono questo immobile un'occasione unica, sia per chi cerca una casa principale che per un investimento sicuro e strategico. Richiesta pari ad euro 410 mila. Contattaci oggi stesso per scoprire tutti i dettagli o fissare una visita!

Servizi nei pressi dell'immobile:
Trasporti pubblici, supermercato, scuole, farmacia, bar, edicola, ristorante/trattoria, albergo, ufficio postale, banca, chiesa, centro commerciale, palestra.




Caratteristiche immobile:
Codice inserzione: 1772102057
Rif. Annuncio: IA101
Provincia: Rimini
Comune: Riccione
Zona: Paese  
Superficie (Mq) : 75 Mq.
Tipo immobile: Appartamento
Stato immobile: ristrutturato
Anno costruzione/ristrutturazione: 2025
Piano: Piano terra
Camere: 2
Stato al rogito: Libero
Posti auto scoperti: 1 posto auto
Tipologia giardino : Privato
Bagni: 2

Costi:
Prezzo € 410.000


Efficienza energetica:
Classe energetica: A4
Riscaldamento: autonomo
Tipologia riscaldamento: energia elettrica