home page > Annunci immobiliari in Italia > Emilia-Romagna > Rimini > Riccione > Negozi uffici capannoni in vendita > Scheda immobile

Negozi uffici capannoni in vendita a Riccione

COMPILA IL MODULO SOTTOSTANTE PER RICEVERE MAGGIORI INFORMAZIONI







Invia la richiesta ad altre agenzie
Accetto il trattamento dei miei dati



Agenzia immobiliare adriacasa di maria cimino

Via catullo, 9c
47838 Riccione (RN)

0541606986    3492775066    Riferimenti: Cimino Maria Gabriella

Riccione
Prezzo: € 470.000
F
250
Piano terra



Descrizione:
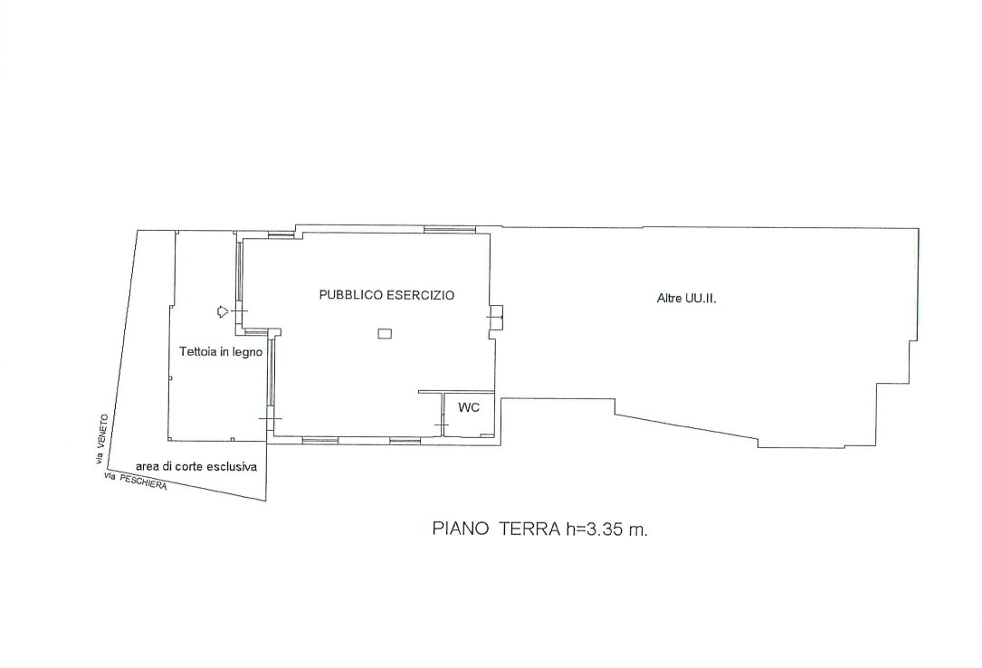
LOCALE COMMERCIALE CON LABORATORIO E MAGAZZINO - RICCIONE SAN LORENZO - In una delle zone più dinamiche e residenziali di Riccione, proponiamo in vendita un locale commerciale dalle grandi potenzialità, perfetto per chi sogna di avviare un'attività come bar, pasticceria o bistrò in una posizione strategica e ben servita. L'immobile si sviluppa su due livelli: al piano terra troviamo un'area destinata al pubblico esercizio di circa 85 mq, luminosa e facilmente personalizzabile, oltre a un ampio laboratorio di circa 134 mq, ideale per la preparazione e produzione. Completa la proprietà una comoda cantina di circa 60 mq al piano seminterrato, perfetta come magazzino o deposito. Spazi versatili, grande visibilità e metrature generose rendono questa proposta unica per chi cerca una soluzione pronta a trasformarsi in un'attività di successo. Richiesta pari ad euro 470 mila, leggermente trattabili. Contattaci per organizzare una visita e scoprire tutte le potenzialità di questo immobile. La tua nuova impresa parte da qui.

Servizi nei pressi dell'immobile:
Trasporti pubblici, supermercato, scuole, farmacia, bar, edicola, ristorante/trattoria, albergo, ufficio postale, banca, chiesa, palestra, lavanderia automatica.




Caratteristiche immobile:
Codice inserzione: 1759929865
Rif. Annuncio: VM101
Provincia: Rimini
Comune: Riccione
Zona: San Lorenzo in Strada  
Superficie (Mq) : 250 Mq.
Tipo immobile: Negozi uffici capannoni
Stato immobile: usato
Piano: Piano terra
Stato al rogito: Libero

Costi:
Prezzo € 470.000


Efficienza energetica:
Classe energetica: F
Indice di prestazione energetica (EPgl): 150 kWh/mc annui
Riscaldamento: autonomo