0541606986 3492775066 Riferimenti: Cimino Maria Gabriella
Descrizione:
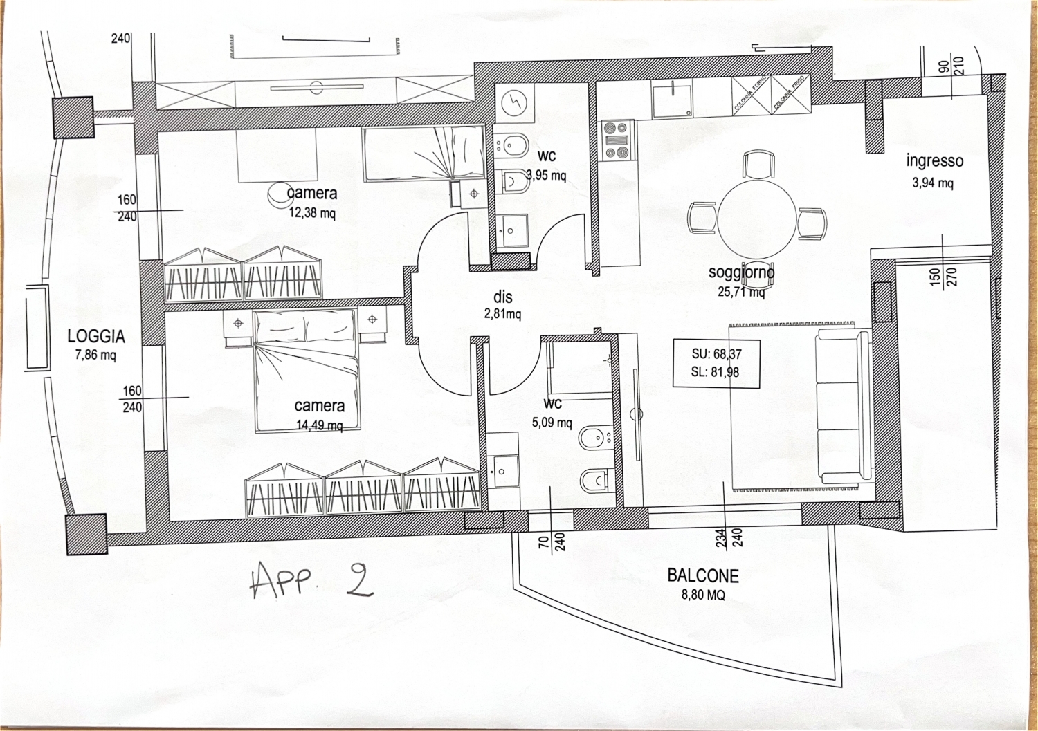
AMPIO TRILOCALE AL GREZZO A POCHI MINUTI DA RICCIONE E DAL AMRE - SANT'ANDREA IN CASALE - A Sant'Andrea in Casale, a soli 10 minuti da Riccione e dal mare, ti presentiamo un'opportunitĂ perfetta per chi sogna una casa da personalizzare in ogni dettaglio. Situato al secondo piano di una palazzina recente, questo appartamento al grezzo ti permette di scegliere finiture, pavimenti, rivestimenti, sanitari e porte, creando uno spazio su misura per te e la tua famiglia. L'ingresso conduce a un soggiorno ampio e luminoso con angolo cottura, affacciato su un comodo balcone ideale per colazioni all'aperto e momenti di relax nella bella stagione. La zona notte offre due camere da letto (una matrimoniale e una singola), entrambe con accesso a un secondo balcone loggiato condiviso, perfetto per respirare aria fresca in ogni momento della giornata. Completano l'abitazione due bagni, comodi e funzionali. Richiesta pari ad euro 240 mila. PossibilitĂ di acquistare un posto auto ad euro 12 mila o un garage a partire da euro 30 mila. Contattaci ora per maggiori informazioni e per prenotare una visita!
Servizi nei pressi dell'immobile:
Trasporti pubblici, supermercato, scuole, farmacia, bar, edicola, ristorante/trattoria, ufficio postale, banca.
| Codice inserzione: | 1760352204 |
| Rif. Annuncio: | SA101 |
| Provincia: | Rimini |
| Comune: | San Clemente |
| Zona: | Sant'Andrea in Casale |
| Superficie (Mq) : | 90 Mq. |
| Tipo immobile: | Appartamento |
| Stato immobile: | al grezzo |
| Anno costruzione/ristrutturazione: | 2019 |
| Piano: | 2 |
| Camere: | 2 |
| Bagni: | 2 |
| Terrazze: | 2 |
| Prezzo | € 240.000 |
| Classe energetica: | In fase di definizione |
| Riscaldamento: | autonomo |