home page > Annunci immobiliari in Italia > Emilia-Romagna > Rimini > San Giovanni in Marignano > Negozi uffici capannoni in vendita > Scheda immobile

Negozi uffici capannoni in vendita a San Giovanni in Marignano

COMPILA IL MODULO SOTTOSTANTE PER RICEVERE MAGGIORI INFORMAZIONI







Invia la richiesta ad altre agenzie
Accetto il trattamento dei miei dati



Agenzia immobiliare adriacasa di maria cimino

Via catullo, 9c
47838 Riccione (RN)

0541606986    3492775066    Riferimenti: Cimino Maria Gabriella

San Giovanni in Marignano
Prezzo: € 600.000
F
600



Descrizione:
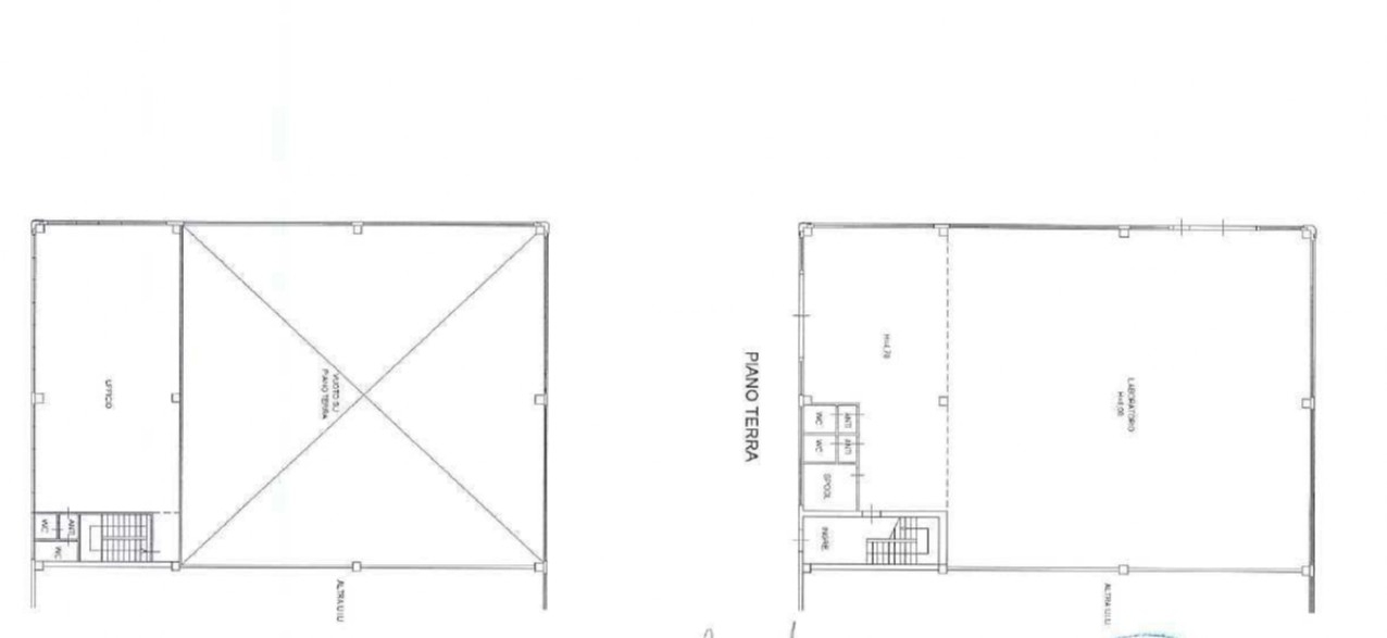
CAPANNONE INDUSTRIALE (D/8) CON SOPPALCO A POCHI MINUTI DAL CASELLO AUTOSTRADALE - SAN GIOVANNI IN MARIGNANO - Nella zona industriale di San Giovanni in Marignano, a pochi minuti dal casello autostradale e quindi in posizione particolarmente strategica per collegamenti e logistica, proponiamo in vendita capannone industriale accatastato D/8, ideale per attività artigianali, produttive o di deposito. L'immobile sviluppa una superficie complessiva di circa 600 mq ed è organizzato in modo funzionale per garantire praticità operativa e una gestione efficiente degli spazi. Al piano terra si trova un ampio laboratorio, uno spazio versatile che si presta perfettamente a lavorazioni, stoccaggio o attività produttive. Il piano soppalcato ospita la zona ufficio, uno spazio riservato e ben integrato con l'area operativa sottostante, ideale per la gestione amministrativa e organizzativa dell'attività. Completa la proprietà una corte comune che permette agevoli operazioni di carico e scarico e garantisce una buona accessibilità anche ai mezzi da lavoro. Una soluzione interessante per aziende o artigiani che cercano uno spazio funzionale in una delle aree produttive più richieste della zona, ben collegata e facilmente raggiungibile. Richiesta pari ad euro 600 mila trattabili. Contattaci per maggiori informazioni o per fissare una visita!

Servizi nei pressi dell'immobile:
Trasporti pubblici, supermercato, scuole, farmacia, bar, edicola, ristorante/trattoria, albergo, palestra.




Caratteristiche immobile:
Codice inserzione: 1773747214
Rif. Annuncio: MA144
Provincia: Rimini
Comune: San Giovanni in Marignano
Superficie (Mq) : 600 Mq.
Tipo immobile: Negozi uffici capannoni
Stato immobile: usato
Stato al rogito: Libero
Tipologia giardino : Condominiale

Costi:
Prezzo € 600.000


Efficienza energetica:
Classe energetica: F
Indice di prestazione energetica (EPgl): 150 kWh/mc annui