home page > Annunci immobiliari in Italia > Emilia-Romagna > Rimini > San Giovanni in Marignano > Negozi uffici capannoni in vendita > Scheda immobile

Negozi uffici capannoni in vendita a San Giovanni in Marignano

COMPILA IL MODULO SOTTOSTANTE PER RICEVERE MAGGIORI INFORMAZIONI







Invia la richiesta ad altre agenzie
Accetto il trattamento dei miei dati



Agenzia immobiliare adriacasa di maria cimino

Via catullo, 9c
47838 Riccione (RN)

0541606986    3492775066    Riferimenti: Cimino Maria Gabriella

San Giovanni in Marignano
Prezzo: € 3.700.000
F
3000
Su due livelli



Descrizione:
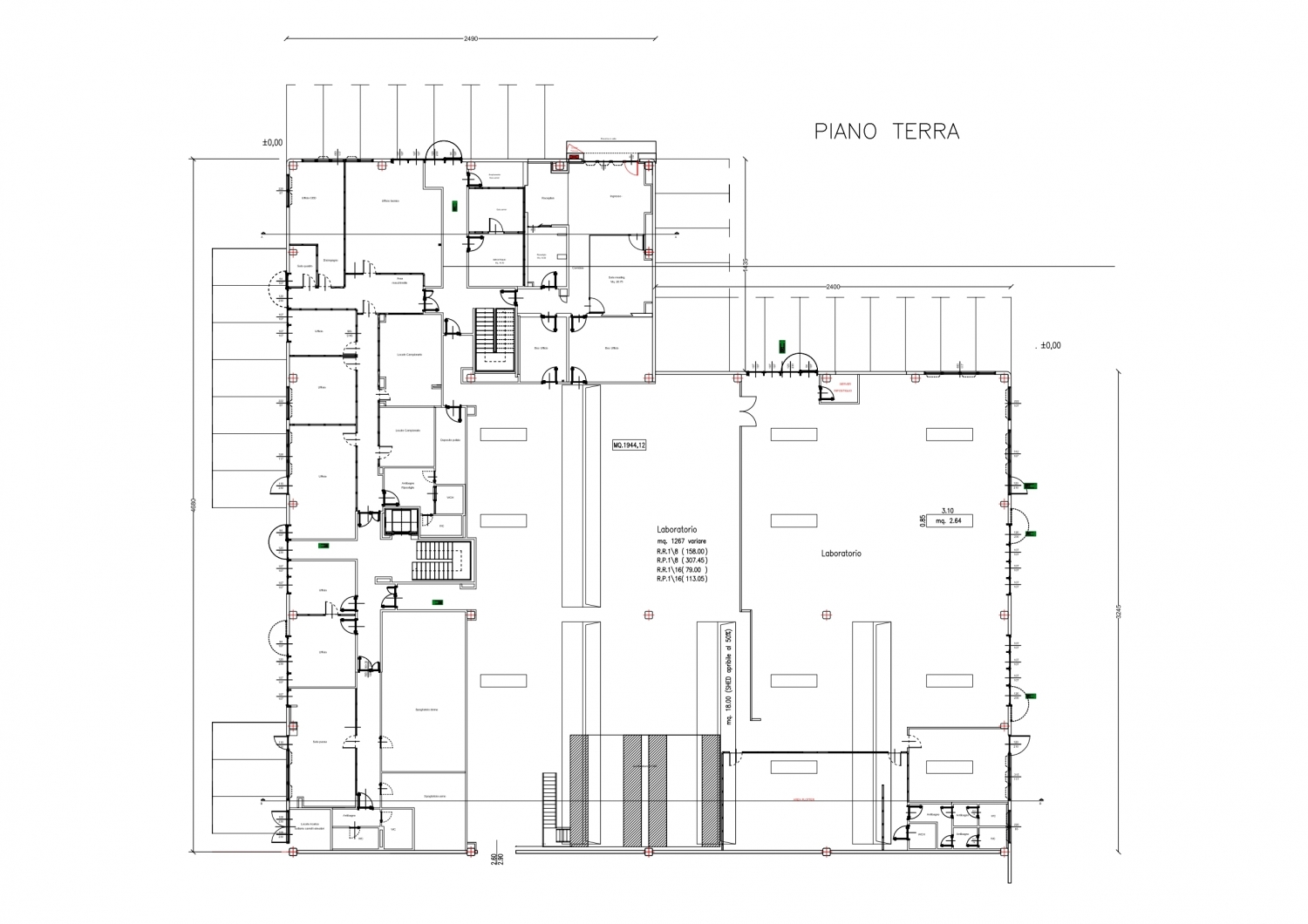
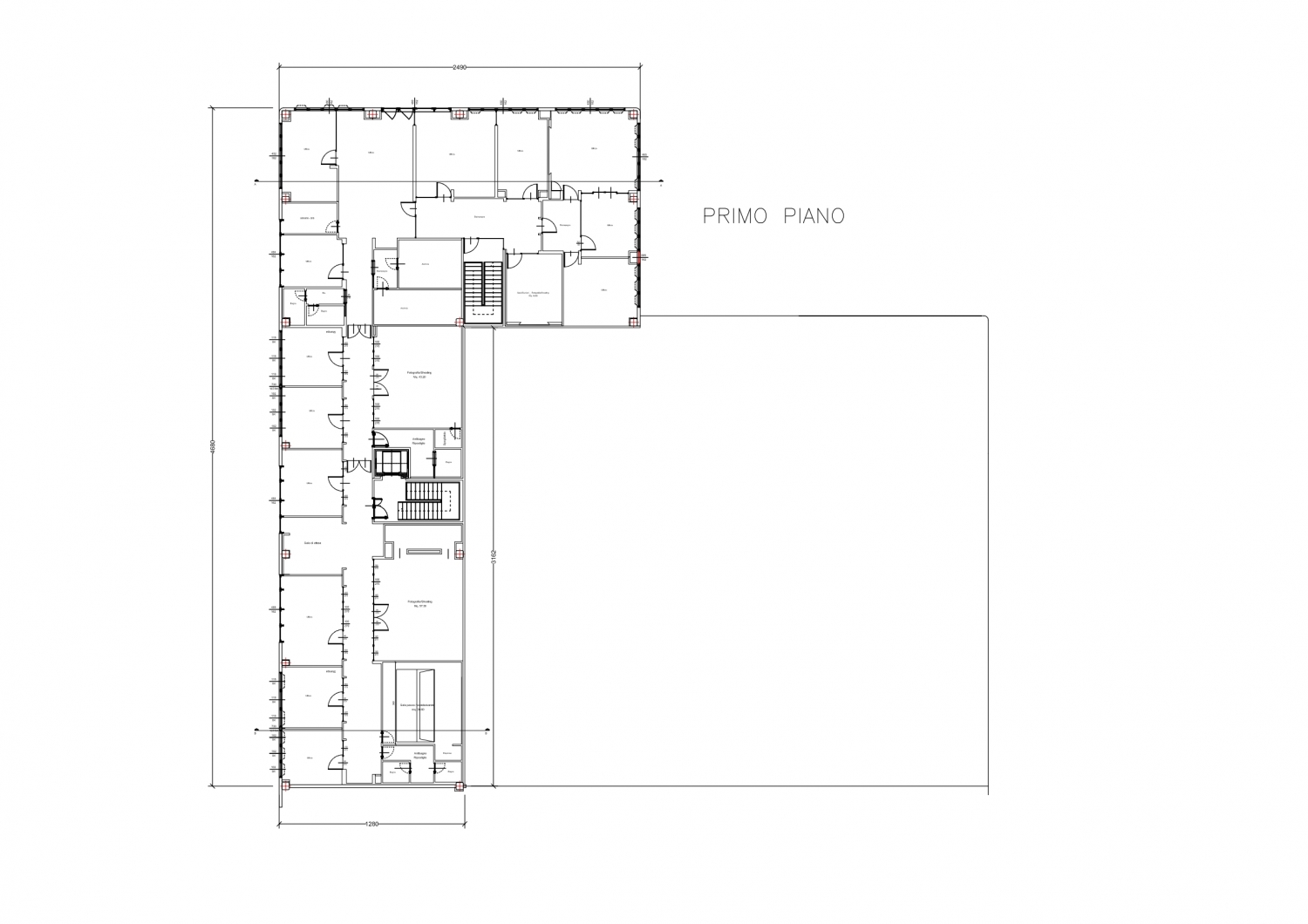
CAPANNONE IDEALE PER SHOWROOM DI LUSSO, A POCHI PASSI DAL CASELLO AUTOSTRADALE - CATTOLICA ZONA INDUSTRIALE - Nella zona industriale di Cattolica, a pochi minuti dal casello autostradale e in una posizione strategica per collegamenti e logistica, proponiamo in vendita un prestigioso capannone industriale di circa 3000 mq, una soluzione ideale per aziende che desiderano unire funzionalità operativa e forte immagine rappresentativa. L'immobile si distingue per la presenza di un elegante showroom di grande impatto, uno spazio curato e di livello superiore, perfetto per accogliere clienti, presentare prodotti e valorizzare il proprio brand in un contesto moderno e professionale. Al piano terra si sviluppa la parte operativa dell'edificio, con laboratori ampi e ben organizzati affiancati da diversi uffici che consentono una gestione efficiente delle attività quotidiane. Gli spazi risultano versatili e facilmente adattabili a diverse tipologie di produzione o attività aziendale. Il piano primo è dedicato alla parte direzionale e amministrativa, con ulteriori uffici e sale riunioni ideali per incontri, gestione aziendale e sviluppo commerciale, in un ambiente riservato e funzionale. Completa la proprietà uno scoperto esterno di oltre 1600 mq, uno spazio prezioso che garantisce comodità nelle operazioni di carico e scarico, parcheggi e movimentazione dei mezzi. Una soluzione di grande rappresentanza per aziende che cercano una sede importante, ben collegata e capace di trasmettere valore e professionalità. Richiesta pari ad euro 3.700.000 trattabili. Contattaci per ricevere maggiori informazioni o per organizzare una visita!

Servizi nei pressi dell'immobile:
Trasporti pubblici, supermercato, scuole, farmacia, bar, edicola.




Caratteristiche immobile:
Codice inserzione: 1773748170
Rif. Annuncio: MA145
Provincia: Rimini
Comune: San Giovanni in Marignano
Superficie (Mq) : 3000 Mq.
Tipo immobile: Negozi uffici capannoni
Piano: Su due livelli
Stato al rogito: Libero

Costi:
Prezzo € 3.700.000


Efficienza energetica:
Classe energetica: F
Indice di prestazione energetica (EPgl): 150 kWh/mc annui