home page > Annunci immobiliari in Italia > Emilia-Romagna > Rimini > Santarcangelo di Romagna > Case e ville indipendenti in vendita > Scheda immobile

Case e ville indipendenti in vendita a Santarcangelo di Romagna

COMPILA IL MODULO SOTTOSTANTE PER RICEVERE MAGGIORI INFORMAZIONI







Invia la richiesta ad altre agenzie
Accetto il trattamento dei miei dati



Immobiliare ceccarelli & buda

Via don minzoni 78
47822 Santarcangelo di Romagna (RN)

0541622688

Santarcangelo di Romagna
Prezzo: info in agenzia
140



Descrizione:
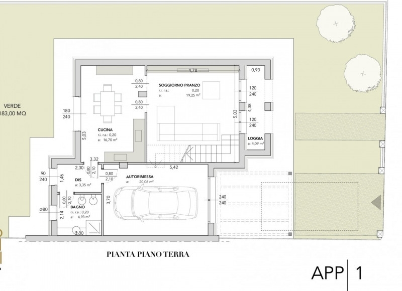
Santarcangelo di romagna a 4/5 km frazione dotata di tutti i servizi di prima necessità compresa la scuola, negozi; per gli amanti della tranquillità prossima costruzione di villette in stile colonico con metrature da 130 /140 mq di abitazione, più portici e giardini di mq 300 circa. Ottimo capitolato.per maggiori informazioni contattare alessandro buda al numero: oppure mandare una mail a




Caratteristiche immobile:
Codice inserzione: 1758595360
Rif. Annuncio: S-V-035
Provincia: Rimini
Comune: Santarcangelo di Romagna
Superficie (Mq) : 140 Mq.
Tipo immobile: Case e ville indipendenti
Stato immobile: nuovo

Costi:
Prezzo info in agenzia


Efficienza energetica: