home page > Annunci immobiliari in Italia > Friuli-Venezia Giulia > Pordenone > Brugnera > Case e ville indipendenti in vendita > Scheda immobile

Case e ville indipendenti in vendita a Brugnera

COMPILA IL MODULO SOTTOSTANTE PER RICEVERE MAGGIORI INFORMAZIONI







Invia la richiesta ad altre agenzie
Accetto il trattamento dei miei dati



Studio immobiliare PI.GRECO

via Molinari 47/b
33170 Pordenone

0434.082439    3355213737    Riferimenti: Silvia Vanzini

Brugnera
Prezzo: € 235.000
In definizione
3
3
235
Su due livelli



Descrizione:
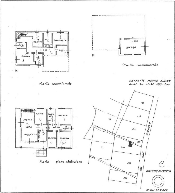
Stupenda villa unifamiliare con grande e curato giardino. L’immobile si sviluppa su due piani dati da un ampissimo piano rialzato sfalsato su due livelli ed un piano seminterrato che prende luce diretta dall’esterno grazie alle alte finestre. Da un vialetto privato del giardino si salgono alcuni scalini e si accede all’entrata principale della villa, siamo accolti da uno stupendo portico che perimetra due lati della villa. Entrando, accediamo ad un ampio ingresso che ci porta ad un grandissimo salone di rappresentanza impreziosito da un signorile caminetto in pietra dove è stata ricavata la zona pranzo e la zona salotto. La cucina è separata con balcone ed è direttamente comunicante con il giardino. Salendo alcuni gradini accediamo alla zona notte che si sviluppa in tre camere e due bagni uno dei quali dotato di antibagno ed arredato con armadio a muro e guardaroba su misura. Il piano seminterrato è molto ben rifinito ed è costituito da un bagno con doccia, dalla rustica taverna, una cantina, la CT, due ripostigli, una stanza uso lavanderia , ed il garage doppio. Il piano è illuminato da luce naturale perché dotato di finestre esterne più alte rispetto al piano. Lo scoperto è il valore aggiunto della villa, si sviluppa lungo tutto il suo perimetro estendendosi sul retro ed è ben piantumato e fiorito. Che aspettate quindi, contattateci per una visita, per accertarvi di persona della opportunità. Inoltre il team dello Studio Immobiliare PI.GRECO è disponibile alla valutazione gratuita dei vostri immobili. Chiamateci per un sopralluogo ed una veloce e felice conclusione della trattativa. Studio Immobiliare PI.GRECO un servizio concreto.




Caratteristiche immobile:
Codice inserzione: 1768411321
Rif. Annuncio: G397
Provincia: Pordenone
Comune: Brugnera
Zona: San Cassiano di Livenza  
Superficie (Mq) : 235 Mq.
Tipo immobile: Case e ville indipendenti
Anno costruzione/ristrutturazione: 1978
Piano: Su due livelli
Camere: 3
Stato al rogito: Libero
Garage: Doppio
Tipologia giardino : Privato
Bagni: 3
Terrazze: 2

Costi:
Prezzo € 235.000


Efficienza energetica:
Classe energetica: In fase di definizione
Riscaldamento: autonomo
Tipologia riscaldamento: Metano