home page > Annunci immobiliari in Italia > Friuli-Venezia Giulia > Pordenone > Fiume Veneto > Case e ville indipendenti in vendita > Scheda immobile

Case e ville indipendenti in vendita a Fiume Veneto

COMPILA IL MODULO SOTTOSTANTE PER RICEVERE MAGGIORI INFORMAZIONI







Invia la richiesta ad altre agenzie
Accetto il trattamento dei miei dati



Studio immobiliare PI.GRECO

via Molinari 47/b
33170 Pordenone

0434.082439    3355213737    Riferimenti: Silvia Vanzini

Fiume Veneto
Prezzo: € 258.000
G
3
2
388
Su più livelli
6314 Mq



Descrizione:
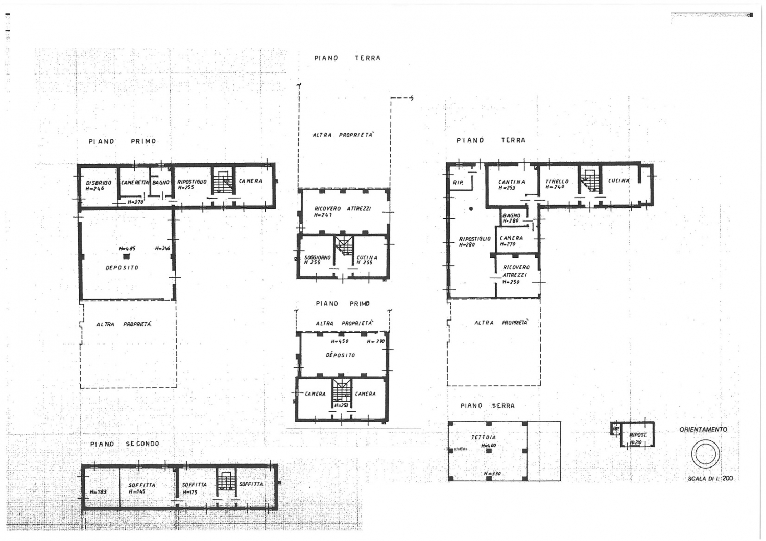
Pregiata villa di campagna con parco piantumato da rari alberi da frutto e con accesso privato alla roggia confinante. L’immobile si sviluppa su tre piani ed è suddiviso in due distinte unità abitative separate, una è stata ben ristrutturata nelle strutture portanti, negli impianti e si sono valorizzate le finiture originali costruttive come le travi, il seminato veneziano dei pavimenti, ed il sasso a vista delle pareti; l’altra invece è stata consolidata nella struttura ma mantiene lo stato originale sia degli impianti che delle finiture. La villa ristrutturata si sviluppa su tre piani ed è composta al piano terra da ingresso, cucina arredata ed accessoriata con bella stufa a legna ad integrazione del riscaldamento, tinello, bagno, camera da letto, cantina, ex stalla in cui sono ancora visibili le pregiate antiche mangiatoie in pietra, piccolo ripostiglio attualmente occupato dal vano caldaia; il primo piano è adibito alla zona notte e si sviluppa in camera matrimoniale, ripostiglio, cameretta, bagno, disbrigo, ex fienile al grezzo dotato di impiantistica nuova; al secondo piano c’è la mansarda suddivisa in tre vani con soffitta al grezzo avanzato dove sono state posizionate le batterie di accumulo del moderno impianto fotovoltaico. La divisione della villa in una parte ristrutturata abitabile comodamente ed in una parte da rimodernare permette di abitarne da subito gli spazi pensando ad una seconda ristrutturazione in tempi congrui e senza fretta, progettando attentamente gli spazi e seguendo da vicino le opere di riallestimento. Infatti questa seconda unità ha ottime altezze e metrature, può quindi essere reinterpretata in molti modi in fase di ristrutturazione, rispondendo a molteplici necessità, dall’ abitativo, allo studio professionale, al laboratorio.... Ulteriore plus della villa è il bellissimo parco piantumato con pregevoli alberi anche antichi che confina sul retro con una suggestiva roggia. In questo parco sorgono due edifici dismessi che danno la possibilità di ulteriore cubatura per un futuro ampliamento non adiacente l’immobile; nel cuore privato del giardino quindi è possibile la realizzazione di una dependance completamente indipendente. Che aspettate quindi, contattateci per una visita, per accertarvi di persona della opportunità. Inoltre il team dello Studio Immobiliare PI.GRECO è disponibile alla valutazione gratuita dei vostri immobili. Chiamateci per un sopralluogo ed una veloce e felice conclusione della trattativa. Studio Immobiliare PI.GRECO un servizio concreto.




Caratteristiche immobile:
Codice inserzione: 1763724631
Rif. Annuncio: G394
Provincia: Pordenone
Comune: Fiume Veneto
Zona: Bannia  
Superficie (Mq) : 388 Mq.
Tipo immobile: Case e ville indipendenti
Stato immobile: ristrutturato
Anno costruzione/ristrutturazione: 1950
Piano: Su più livelli
Camere: 3
Stato al rogito: Libero
Giardino : 6314 Mq.
Tipologia giardino : Privato
Bagni: 2

Costi:
Prezzo € 258.000


Efficienza energetica:
Classe energetica: G
Indice di prestazione energetica (EPgl): 242.06 kWh/mq annui
Riscaldamento: autonomo