Descrizione:
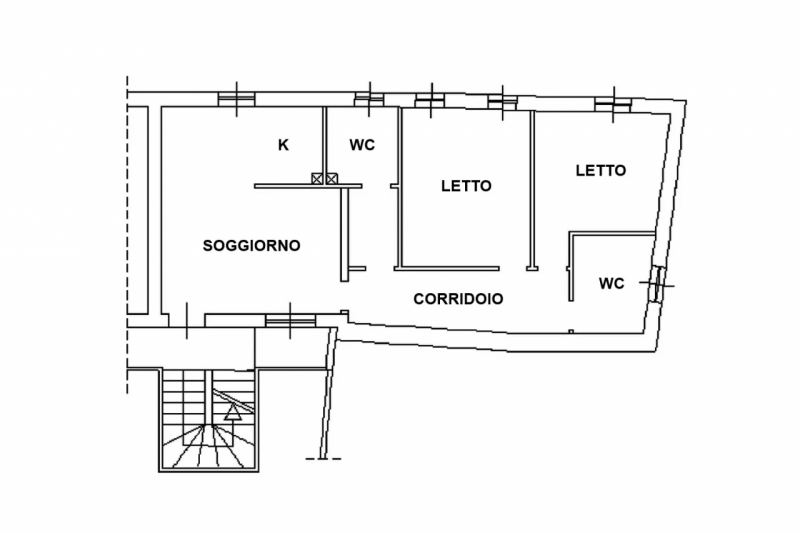
Qpn1vendesi all'asta appartamento a maniago in data 3 marzo 2026 caratteristiche principali:-contesto tranquillo e ben servito: situato in una zona semicentrale di maniago, poco trafficata e ben collegata al centro e a pordenone.-spazi funzionali e luminosi: appartamento al primo piano con ingresso da ballatoio, ampio soggiorno, cucinotto, due camere e due bagni.-rifiniture di qualità: pavimenti in ceramica nella zona giorno e parquet nella zona notte, finestre in legno con persiane, porte in legno.-impianti efficienti: riscaldamento autonomo con caldaia e radiatori, climatizzazione a split.-pertinenze incluse: posto auto coperto e cantina al piano terra, con accesso tramite spazi condominiali condivisi.prezzo minimo: 40.392 europerché scegliere noi?acquistare all'asta può sembrare complesso, ma noi lo rendiamo semplice e sicuro.con aste-affari hai:-analisi completa di fattibilità tecnica, legale e finanziaria-verifica vincoli e costi occulti-assistenza in tutte le fasi, fino alla consegna delle chiavipossibilità di mutuo contattaci per info, consulenza e prenotare una visita:☎ perdere questa occasione di acquistare un immobile in una zona tranquilla e ben servita a un prezzo vantaggioso. Contattaci per una consulenza personalizzata e per ricevere tutta l'assistenza necessaria durante il processo d'acquisto.