home page > Annunci immobiliari in Italia > Friuli-Venezia Giulia > Pordenone > Pasiano di Pordenone > Terreni in vendita > Scheda immobile

Terreni in vendita a Pasiano di Pordenone

COMPILA IL MODULO SOTTOSTANTE PER RICEVERE MAGGIORI INFORMAZIONI







Invia la richiesta ad altre agenzie
Accetto il trattamento dei miei dati



Asteaffari.com

Viale g. E l. Olivi 38
31100 Treviso

04221781118    Riferimenti: Stefano Dalto

Pasiano di Pordenone
Prezzo: € 30.600
1705



Descrizione:
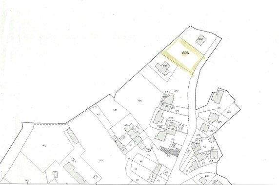
Rif. A.a.344-24vendita all'asta - terreno edificabile residenziale in data 18 febbraio 2026descrizione: trattasi di un'area edificabile, attualmente incolta con presenza di alberatura spontanea. Potenzialmente divisibile a mezzo di una pratica di frazionamento al catasto terreni per la formazione di n. 4 appezzamenti. Superficie complessiva mq. 1705.l'immobile viene venduto tramite asta giudiziaria, ed il prezzo indicato si riferisce al prezzo minimo accettato per la partecipazione all'asta.aste-affari fornisce un servizio di assistenza e consulenza tecnica, legale, fiscale e finanziaria su acquisti all'asta e affari immobiliari, al fine di rendere più facile e sicuro l'acquisto di un immobile proveniente dal mercato giudiziario oppure da occasioni presenti sul mercato immobiliare.analisi di fattibilità, tecnica, burocratica, finanziaria, legale, esame problematiche e vincoli, conteggio costi accessori ed occulti, assistenza in tutte le fasi della procedura fino alla consegna delle chiavi dell'immobile.l'acquisto può essere finanziato tramite mutuo, e, ove possibile anche in pre-asta tramite procedura di saldo-stralcio.prezzo minimo base asta : da euro 30.600,00per info aggiuntive, prenotazione visione, consulenza ed assistenza su asta :studio di consulenza : 'aste-affari.com'info: sei un debitore ? chiamaci ! abbiamo soluzioni personalizzate anche per te.




Caratteristiche immobile:
Codice inserzione: 1767586226
Rif. Annuncio: A.A. 344-24
Provincia: Pordenone
Comune: Pasiano di Pordenone
Superficie (Mq) : 1705 Mq.
Tipo immobile: Terreni

Costi:
Prezzo € 30.600


Efficienza energetica:
Classe energetica: Immobile non soggetto all'obbligo di certificazione