home page > Annunci immobiliari in Italia > Friuli-Venezia Giulia > Pordenone > Prata di Pordenone > Negozi uffici capannoni in vendita > Scheda immobile

Negozi uffici capannoni in vendita a Prata di Pordenone

COMPILA IL MODULO SOTTOSTANTE PER RICEVERE MAGGIORI INFORMAZIONI







Invia la richiesta ad altre agenzie
Accetto il trattamento dei miei dati



Paludet & partners estate

Galleria asquini, 1
33170 Pordenone

0434208080    +39 336 808680    Riferimenti: Bruno Paludet

Prata di Pordenone
Prezzo: Info in agenzia
3200



Descrizione:
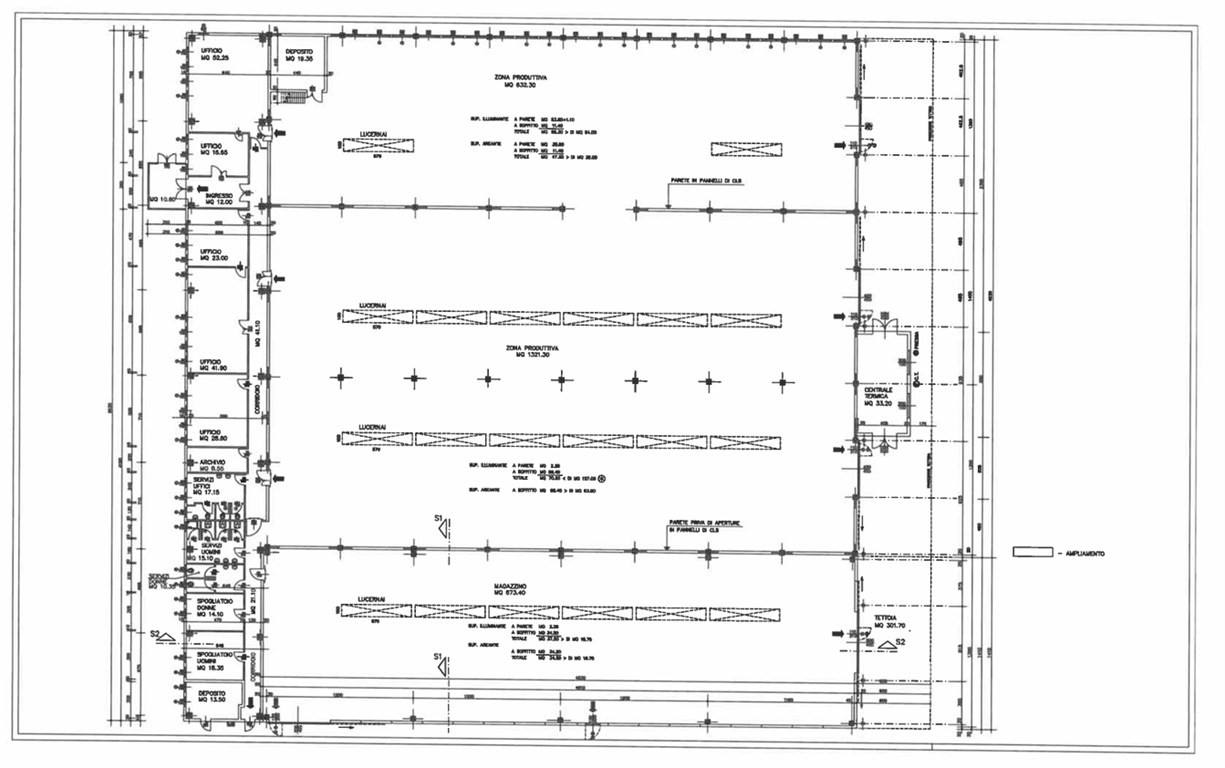
Capannone industriale di 3.200 metri quadrati con relativi uffici su un'area di 7.540 metri quadri. Altezza sottotrave di 5,80 metri. Dista 10 km dallo svincolo autostradale a28 e 8 km dalla strada statale 13 pontebbana. Dotato di impianto fotovoltaico da 130 kw.




Caratteristiche immobile:
Codice inserzione: 1773723693
Rif. Annuncio: C348
Provincia: Pordenone
Comune: Prata di Pordenone
Superficie (Mq) : 3200 Mq.
Tipo immobile: Negozi uffici capannoni

Costi:
Prezzo Info in agenzia
Spese condominiali: € 0


Efficienza energetica: