home page > Annunci immobiliari in Italia > Friuli-Venezia Giulia > Pordenone > Sacile > appartamenti in vendita > Scheda immobile

Appartamento in vendita a Sacile

COMPILA IL MODULO SOTTOSTANTE PER RICEVERE MAGGIORI INFORMAZIONI







Invia la richiesta ad altre agenzie
Accetto il trattamento dei miei dati



Asteaffari.com

Viale g. E l. Olivi 38
31100 Treviso

04221781118    Riferimenti: Stefano Dalto

Sacile
Prezzo: € 102.750
E
2
2
107
Piano terra



Descrizione:
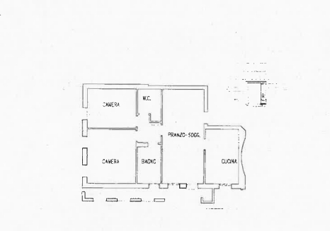
Rif. A.a.67-24vendita all'asta - appartamento al piano terra con garage in data 22 gennaio 2026descrizione immobile: trattasi di un appartamento ubicato al piano terra di un condominio sito nel comune di sacile (pn) e dei relativi garage e cantina pertinenziali al piano interrato. L'unità immobiliare, della superficie commerciale complessiva di mq.107, è composto al piano terra da pranzo-soggiorno, al quale avviene direttamente l'ingresso, ed a cui si annettono la cucina e l'atrio notte dal quale si raggiungono da 2 camere da letto, un bagno ed altro bagno completo di scarico per lavatrice. Completano la consistenza l'autorimessa e la cantina, entrambe al piano interrato. l'immobile viene venduto tramite asta giudiziaria, ed il prezzo indicato si riferisce al prezzo minimo accettato per la partecipazione all'asta .aste-affari fornisce un servizio di assistenza e consulenza tecnica , legale, fiscale e finanziaria su acquisti all'asta e affari immobiliari , al fine di rendere più facile e sicuro l'acquisto di un immobile proveniente dal mercato giudiziario oppure da occasioni presenti sul mercato immobiliare . analisi di fattibilità , tecnica, burocratica, finanziaria , legale , esame problematiche e vincoli , conteggio costi accessori ed occulti, assistenza in tutte le fasi della procedura fino alla consegna delle chiavi dell'immobile .l'acquisto può essere finanziato tramite mutuo , e , ove possibile , anche in pre-asta tramite procedura di saldo-stralcio .soluzioni personalizzate per i debitori .prezzo minimo base asta : euro 102.750,00per info aggiuntive , prenotazione visione, consulenza ed assistenza studio di consulenza : 'aste-affari.com'info :




Caratteristiche immobile:
Codice inserzione: 1764907169
Rif. Annuncio: A.A. 67-24
Provincia: Pordenone
Comune: Sacile
Superficie (Mq) : 107 Mq.
Tipo immobile: Appartamento
Stato immobile: usato
Anno costruzione/ristrutturazione: 2000
Piano: Piano terra
Camere: 2
Arredato:
Garage: Singolo
Tipologia giardino : Condominiale
Bagni: 2

Costi:
Prezzo € 102.750


Efficienza energetica:
Classe energetica: E
Riscaldamento: autonomo