home page > Annunci immobiliari in Italia > Friuli-Venezia Giulia > Pordenone > San Quirino > Case e ville indipendenti in vendita > Scheda immobile

Case e ville indipendenti in vendita a San Quirino

COMPILA IL MODULO SOTTOSTANTE PER RICEVERE MAGGIORI INFORMAZIONI







Invia la richiesta ad altre agenzie
Accetto il trattamento dei miei dati



Bruno bari servizi immobiliari

Via bertossi 15
33170 Pordenone

0434208275    Riferimenti: Maria Grazia Lozzer

San Quirino
Prezzo: € 98.000
G
3
2
195
11



Descrizione:
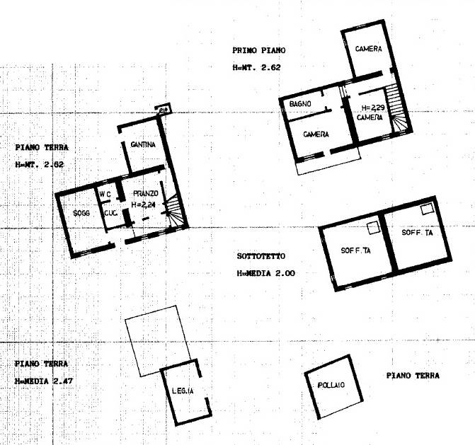
Nel comune di san quirino e pià precisamente a san foca, proponiamo in vendita porzione di testa di abitazione in linea. L'immobile, con spazi esterni autonomi, à edificata su due livelli oltre il sottotetto. Al piano terra, in corpi staccati, sono presenti garage, legnaia e pollaio. L'abitazione dispone di pranzo, soggiorno, cucina, wc, cantina e ripostiglio esterno; al piano primo tre camere e bagno oltre ad un terrazzino. un'occasione da cogliere al volo!!




Caratteristiche immobile:
Codice inserzione: 1758596456
Rif. Annuncio: PN_ALL1
Provincia: Pordenone
Comune: San Quirino
Zona: San Foca  
Superficie (Mq) : 195 Mq.
Tipo immobile: Case e ville indipendenti
Piano: 11
Camere: 3
Garage: Singolo
Bagni: 2
Terrazze: 1

Costi:
Prezzo € 98.000


Efficienza energetica:
Classe energetica: G
Indice di prestazione energetica (EPgl): 375.83 kWh/mq annui
Riscaldamento: autonomo