home page > Annunci immobiliari in Italia > Friuli-Venezia Giulia > Pordenone > Vivaro > Rustici in vendita > Scheda immobile

Rustici in vendita a Vivaro

COMPILA IL MODULO SOTTOSTANTE PER RICEVERE MAGGIORI INFORMAZIONI







Invia la richiesta ad altre agenzie
Accetto il trattamento dei miei dati



Asteaffari.com

Viale g. E l. Olivi 38
31100 Treviso

04221781118    Riferimenti: Stefano Dalto

Vivaro
Prezzo: € 40.343
F
2
303
Ultimo piano



Descrizione:
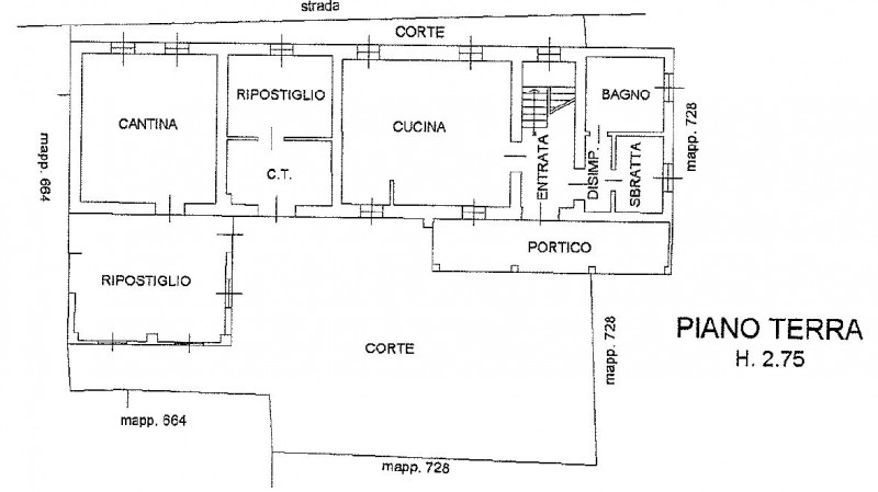
Rif. A.a.359-15 vendita all'asta - casa e terreni in data 16 gennaio 2026 descrizione immobili : immobile rurale residenziale unifamiliare a 3 piani. Al livello terra composta da porticato, ingresso cucina, disimpegno, sbratta, bagno, ct, ripostiglio, cantina, ripostiglio; al piano primo 4 camere, corridoio, bagno, terrazzo, 2 ripostigli con accesso esterno; al piano secondo soffitta al grezzo suddivisa in 2 vani. In fabbricato attiguo legnaia, terreno edificabile attualmente a vigneto per 2.675 mq con varietá merlot, lambrusco, refosco. l'immobile viene venduto tramite asta giudiziaria, ed il prezzo indicato si riferisce al prezzo minimo accettato per la partecipazione all'asta .aste-affari fornisce un servizio di assistenza e consulenza tecnica , legale, fiscale e finanziaria su acquisti all'asta e affari immobiliari , al fine di rendere più facile e sicuro l'acquisto di un immobile proveniente dal mercato giudiziario oppure da occasioni presenti sul mercato immobiliare . analisi di fattibilità , tecnica, burocratica, finanziaria , legale , esame problematiche e vincoli , conteggio costi accessori ed occulti, assistenza in tutte le fasi della procedura fino alla consegna delle chiavi dell'immobile .l'acquisto può essere finanziato tramite mutuo , e , ove possibile , anche in pre-asta tramite procedura di saldo-stralcio .soluzioni personalizzate per i debitori .prezzo minimo base asta : euro 40.343per info aggiuntive , prenotazione visione, consulenza ed assistenza studio di consulenza : 'aste-affari.com'info :




Caratteristiche immobile:
Codice inserzione: 1763956848
Rif. Annuncio: A.A.359-15
Provincia: Pordenone
Comune: Vivaro
Zona: Tesis  
Superficie (Mq) : 303 Mq.
Tipo immobile: Rustici
Stato immobile: usato
Anno costruzione/ristrutturazione: 1973
Piano: Ultimo piano
Arredato:
Bagni: 2
Terrazze: 1

Costi:
Prezzo € 40.343


Efficienza energetica:
Classe energetica: F
Riscaldamento: autonomo