0422815891 0422.815891 347.2460877
Descrizione:
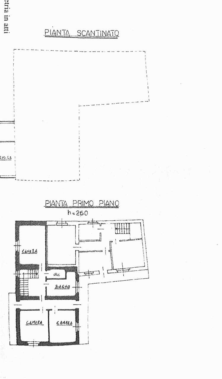
🏡 porzione di casa nelle alpi carniche cavazzo carnico, cesclansin posizione panoramica e tranquilla, nel cuore delle alpi carniche, proponiamo porzione di casa degli anni '70, ottimamente mantenuta nel tempo, perfetta per chi cerca una residenza immersa nella natura, ma a pochi passi dai principali servizi." caratteristiche principali:superficie di 220 mq disposti su scantinato, due livelli abitativi, e un piano sottotetto,3 camere doppie spaziose e luminose2 bagni funzionali2 terrazzi che percorrono la facciata della casa, ideali per godersi la vista panoramicasalotto e cucina separati per una comoda zona giornogiardino comune di 400 mq, perfetto per attività all'aperto e relax'° prezzo richiesto: 110.000€"... l'immobile necessita del ripristino dell'impianto, ma rappresenta una magnifica opportunità per chi desidera personalizzare la propria abitazione in un contesto montano esclusivo.🌲 posizione ideale per gli amanti della montagna, a pochi passi dalle meraviglie naturali delle alpi carniche e dal lago di cavazzo, ma a pochi minuti dai servizi di cavazzo carnico.contattaci per maggiori dettagli o per fissare una visita!agenzia immobiliare cienne snc oderzo (treviso)- piancavallo- aviano (pn) tel altre nostre proposte su: noi la vendita del vostro immobile si perfezionera' in tempi brevissimi, non aspettate a contattarci al n Affrettatevi!i mutui più vantaggiosi del mercato per convenienza e flessibilità. Fino al 100% del valore dell'immobile.classe energetica: in fase di valutazione
| Codice inserzione: | 1762301493 |
| Rif. Annuncio: | CARNIAporzione108 |
| Provincia: | Udine |
| Comune: | Cavazzo Carnico |
| Superficie (Mq) : | 226 Mq. |
| Tipo immobile: | Case e ville a schiera |
| Camere: | 3 |
| Prezzo | € 108.000 |