home page > Annunci immobiliari in Italia > Friuli-Venezia Giulia > Udine > Pontebba > Attività commerciali in vendita > Scheda immobile

Attività commerciali in vendita a Pontebba

COMPILA IL MODULO SOTTOSTANTE PER RICEVERE MAGGIORI INFORMAZIONI







Invia la richiesta ad altre agenzie
Accetto il trattamento dei miei dati



Immobigo srl

Via nazionale
33010 Tavagnacco (UD)

04321598035    Riferimenti: Luca Sartori

Pontebba
Prezzo: € 450.000
500



Descrizione:
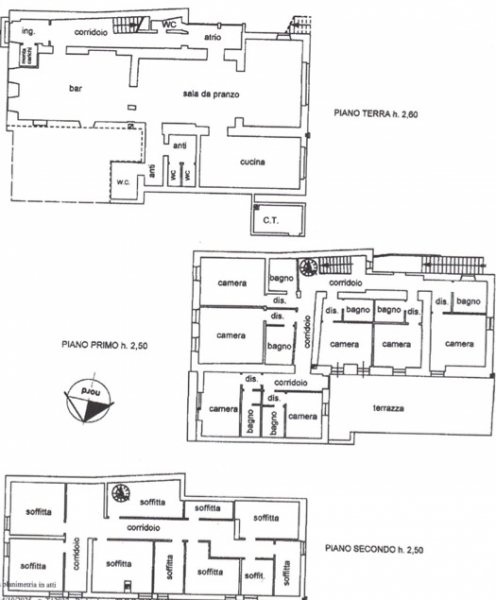
Vendesi attività ricettiva e di ristorazione a san leopoldo la glesie (pontebba). Attività storica e funzionante impresa turistico-ricettiva composta da ristorante/bar e piccolo albergo in piena attività, corredata da locale commerciale adiacente già adibito a negozio. L'attività comprende oltre alla zona ristorante/basanche camere spaziose per attività alberghiera. Completa la proprietà un ampio spazio esterno e zona parcheggio esclusiva. Opportunità ideale per imprenditori del settore che cercano un business con flussi turistici consolidati e utile dimostrabile.l'immobile si trova a san leopoldo la glesie, frazione di pontebba, zona montana con forte vocazione turistica e collocazione di passaggio verso l'austria. Pontebba è un centro di riferimento per escursionismo, cicloturismo e turismo invernale nella carnia. Ideale per sviluppare attività di ristorazione, ricettività e servizi per cicloturisti. Importante clientela proveniente da aziende che si servono della struttuta per il proprio personale. Utile dimostrabile disponibile per visione in fase di trattativa (bilanci, registri e documentazione fiscale). Locale commerciale annesso già allestito come negozio: possibilità di ricavare show room, punto vendita di prodotti tipici, noleggio e-bike o shop per ciclisti. spazio per eventi, pranzi turistici e convenzioni per gruppi/escursionisti; possibilità di ampliare servizi (delivery, catering, pacchetti experience) per aumentare la marginalità. L'investimento è rivolto ad imprenditori, operatori del turismo outdoor, franchising di ristorazione/ospitalità, o investitori interessati a un'attività con flussi turistici consolidati e potenziale di sviluppo (stagionalità estiva/invernale bilanciata).visione documentazione: bilanci certificati, planimetrie, descrizione completa dei locali e proposta economica presso la nostra agenzia. Classe energetica = in attesa




Caratteristiche immobile:
Codice inserzione: 1762731477
Rif. Annuncio: 0144_1088626
Provincia: Udine
Comune: Pontebba
Superficie (Mq) : 500 Mq.
Tipo immobile: Attività commerciali

Costi:
Prezzo € 450.000


Efficienza energetica: