home page > Annunci immobiliari in Italia > Friuli-Venezia Giulia > Udine > Tarcento > Negozi uffici capannoni in affitto > Scheda immobile

Negozi uffici capannoni in affitto a Tarcento

COMPILA IL MODULO SOTTOSTANTE PER RICEVERE MAGGIORI INFORMAZIONI







Invia la richiesta ad altre agenzie
Accetto il trattamento dei miei dati



Immobigo srl

Via nazionale
33010 Tavagnacco (UD)

04321598035    Riferimenti: Luca Sartori

Tarcento
Prezzo: € 2.000
D
458



Descrizione:
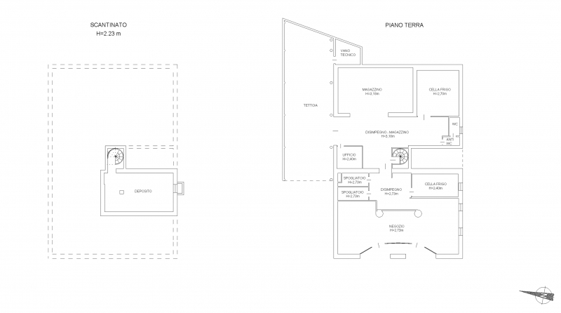
Proponiamo un ampio ufficio di 354mq con 6/10 posti auto di proprietà vetrinato situato in posizione strategica nel cuore di tarcento, direttamente affacciato sulla frequentata piazza del mercato. L'ufficio è in posizione strategica ed ha una grande illuminazione naturale. Attualmente, lo spazio interno è suddiviso in più ambienti tramite pareti in cartongesso, facilmente removibili per consentire una completa personalizzazione degli spazi secondo le proprie esigenze. L'immobile dispone inoltre di un comodo parcheggio privato, con sei posti auto scoperti, per complessivi 90mq. è presente un'ampia tettoia di 116mq a servizio dell'ufficio, supportata da una zona dedicata esclusivamente all'attività carico scarico merci di quasi 100mq utile come zona parcheggio privata, carico/scarico merci o ad uso conviviale dello stesso ufficio. Al piano interrato si trova una spaziosa cantina di 54mq. Il riscaldamento è autonomo e l'immobile è dotato di un impianto di raffreddamento di tipo industriale già installato. Nessuna spesa condominiale.metrature: ufficio 354mq, cantina e accessori 64mq, tettoia 116mq, zona riservata carico scarico 90mq, posti auto scoperti di proprietà 6 per 90mqclasse energetica: dcontratto di locazione 6+6 o 9+9 no iva ( si affitta da privati ) classe energetica = d




Caratteristiche immobile:
Codice inserzione: 1765323418
Rif. Annuncio: 0087_1091778
Provincia: Udine
Comune: Tarcento
Superficie (Mq) : 458 Mq.
Tipo immobile: Negozi uffici capannoni

Costi:
Prezzo € 2.000


Efficienza energetica:
Classe energetica: D