Descrizione:
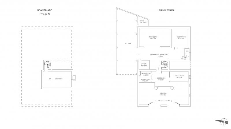
Proponiamo un ampio ufficio di 354mq con 6/10 posti auto di proprietà vetrinato situato in posizione strategica nel cuore di tarcento, direttamente affacciato sulla frequentata piazza del mercato. L'ufficio è in posizione strategica ed ha una grande illuminazione naturale. Attualmente, lo spazio interno è suddiviso in più ambienti tramite pareti in cartongesso, facilmente removibili per consentire una completa personalizzazione degli spazi secondo le proprie esigenze. L'immobile dispone inoltre di un comodo parcheggio privato, con sei posti auto scoperti, per complessivi 90mq. è presente un'ampia tettoia di 116mq a servizio dell'ufficio, supportata da una zona dedicata esclusivamente all'attività carico scarico merci di quasi 100mq utile come zona parcheggio privata, carico/scarico merci o ad uso conviviale dello stesso ufficio. Al piano interrato si trova una spaziosa cantina di 54mq. Il riscaldamento è autonomo e l'immobile è dotato di un impianto di raffreddamento di tipo industriale già installato. Nessuna spesa condominiale.metrature: ufficio 354mq, cantina e accessori 64mq, tettoia 116mq, zona riservata carico scarico 90mq, posti auto scoperti di proprietà 6 per 90mqclasse energetica: dcontratto di locazione 6+6 o 9+9 no iva ( si affitta da privati ) classe energetica = d