home page > Annunci immobiliari in Italia > Friuli-Venezia Giulia > Udine > Tavagnacco > Negozi uffici capannoni in affitto > Scheda immobile

Negozi uffici capannoni in affitto a Tavagnacco

COMPILA IL MODULO SOTTOSTANTE PER RICEVERE MAGGIORI INFORMAZIONI







Invia la richiesta ad altre agenzie
Accetto il trattamento dei miei dati



Immobigo srl

Via nazionale
33010 Tavagnacco (UD)

04321598035    Riferimenti: Luca Sartori

Tavagnacco
Prezzo: € 6.500
3570



Descrizione:
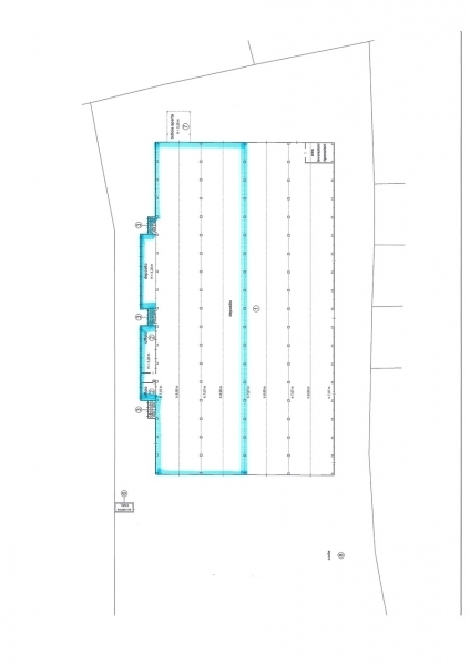
Capannone di 3300mq con 2 carroponti ( porzione ) a 1,9 km dall'uscita dell'autostrada udine nord. Il capannone si presenta con soluzioni integrate e avanzate dal punto di vista della sicurezza e della funzionalità industriale, edificato negli anni '70 e perfettamente manutenzionato. In primo luogo, il sistema antincendio è completo e strutturato: è presente una rete antincendio dotata di cisterna, manichette e attacchi e cupolini antifumo collegati all'impianto, mentre la struttura portante è rivestita con una vernice antifumo e antincendio con certificazione rei30, garantendo elevati standard di protezione. L'impianto elettrico, completamente rifatto nel 2017, si distingue per l'utilizzo di tecnologia led per metà del sistema di illuminazione e per l'impiego di quadri elettrici polini automatizzati (q polini). La disponibilità di alimentazioni sia a 220v che a 380v, unita a una massa di carico elettrico superiore a 8 kw, rende l'infrastruttura particolarmente adatta ad esigenze produttive e operative elevate. Dal punto di vista logistico, la proprietà è dotata di una rampa per camion con due piattaforme di carico e spazi di parcheggio con le aree per la manovra di bilici per 8000mq. è inoltre presente una pesa, attualmente in stato di inattivazione, che potrà essere attivata per supportare le operazioni di carico e scarico. La struttura è ulteriormente dotata di 4 portoni ( due frontali e due posteriori, altezza di 5,5 metri e una larghezza di 5 metri ). Nel capannone sono inseriti uffici che sono completamente cablati e muniti di riscaldamento e condizionamento autonomi.dotazioni energetiche: cabina elettrica media tensione (20kv) in proprietà riattivabile con intervento di upgrade. Ideale per attività produttive/commerciali ad alto fabbisogno energetico. Tempi di riattivazione: 3-4 settimane.metrature: capannone 3300mq, spazi di manovra 8000mq, uffici 155mq, magazzino 115mq, lotto recintatocaratteristiche: altezza capannone 8 mt, ampia zona di manovra comune e rampa carico/scarico con 2 piattaforme, 4 portoni, 2 carroponti ( 6,5t e 6t uno per campata ) , impianto antincendio funzionante con cisterna esterna di 72 mc con portata 1200 l al minuto, cupolini antifumo collegati all'impianto ( cpi: cerificato prevenzione incendi: depositato presso i nostri uffici )contratto di locazione 6+6 o 9+9 più iva a norma di legge classe energetica = in attesa




Caratteristiche immobile:
Codice inserzione: 1762731495
Rif. Annuncio: 0142_1088648
Provincia: Udine
Comune: Tavagnacco
Superficie (Mq) : 3570 Mq.
Tipo immobile: Negozi uffici capannoni

Costi:
Prezzo € 6.500


Efficienza energetica: