home page > Annunci immobiliari in Italia > Friuli-Venezia Giulia > Udine > Tavagnacco > Negozi uffici capannoni in affitto > Scheda immobile

Negozi uffici capannoni in affitto a Tavagnacco

COMPILA IL MODULO SOTTOSTANTE PER RICEVERE MAGGIORI INFORMAZIONI







Invia la richiesta ad altre agenzie
Accetto il trattamento dei miei dati



Paulin

Viale trieste 115
33100 Udine

0432511950    0432511948    Riferimenti: Massimo Zorzi

Tavagnacco
Prezzo: € 2.000
233



Descrizione:
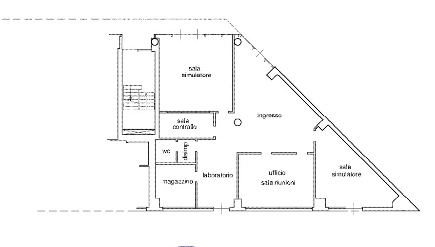
tavagnacco – spazio direzionale con vetrine e parcheggi riservati in complesso commerciale direzionale fronte strada di recente costruzione (2010), proponiamo spazio direzionale con ampie vetrine, ideale per uffici, studi professionali e sedi aziendali. l’immobile si sviluppa in: 4 uffici indipendenti, ampio open space e servizio igienico con antibagno. sono presenti tre ingressi pedonali sui fronti nord e sud, oltre a serramento a doppia anta per l’accesso di materiali ingombranti. climatizzazione centralizzata estiva/invernale con contacalorie, le unità interne ad aria a soffitto gestibili autonomamente4 posti auto scoperti riservati ad uso esclusivi e parcheggio visitatori a servizio del complessocanone: € 2.000 + iva / mese, contratto 6 + 6deposito cauzionale: 3 mensilitàclasse energetica " a3" vendita trattativa riservata




Caratteristiche immobile:
Codice inserzione: 1770414019
Rif. Annuncio: PAU4040815
Provincia: Udine
Comune: Tavagnacco
Superficie (Mq) : 233 Mq.
Tipo immobile: Negozi uffici capannoni
Stato immobile: ristrutturato
Anno costruzione/ristrutturazione: 2010

Costi:
Prezzo € 2.000


Efficienza energetica:
Classe energetica: Immobile non soggetto all'obbligo di certificazione
Riscaldamento: centralizzato