home page > Annunci immobiliari in Italia > Friuli-Venezia Giulia > Udine > Tavagnacco > Terreni in vendita > Scheda immobile

Terreni in vendita a Tavagnacco

COMPILA IL MODULO SOTTOSTANTE PER RICEVERE MAGGIORI INFORMAZIONI







Invia la richiesta ad altre agenzie
Accetto il trattamento dei miei dati



Paulin

Viale trieste 115
33100 Udine

0432511950    0432511948    Riferimenti: Massimo Zorzi

Tavagnacco
Prezzo: € 360.000
1200



Descrizione:
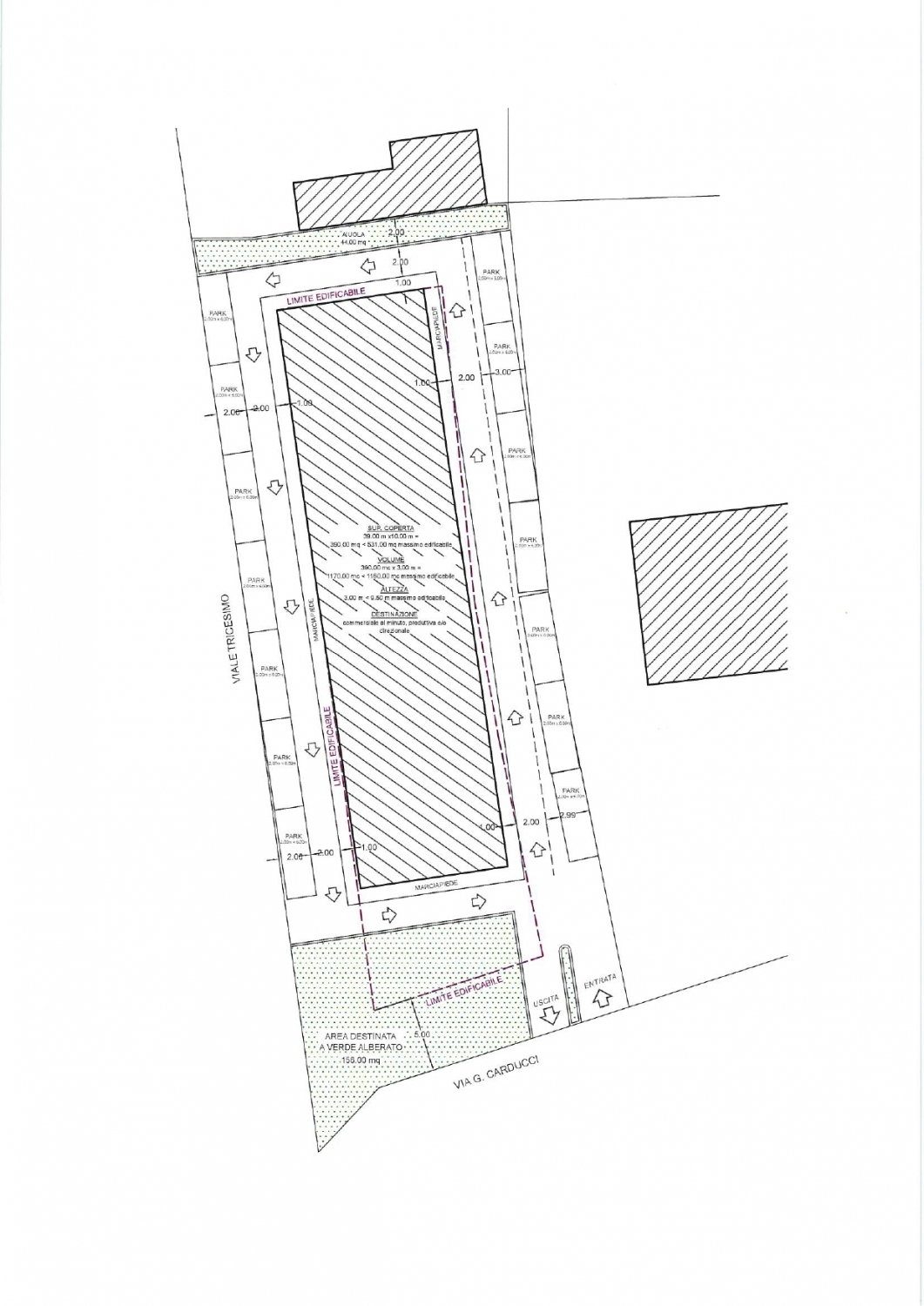
tavagnacco – zona commerciale strategica proponiamo in vendita terreno edificabile di circa 1.200 mq situato in zona commerciale ben servita e ad alta visibilità, caratterizzata dalla presenza di negozi e numerose attività, oltre a contesto residenziale consolidato.il lotto posizionato fronte strada in zona b offre possibilità edificatoria per la realizzazione di un edificio commerciale o ricettivo di circa 400 mq, ideale per attività commerciali e direzionali o ricettiva. La posizione risulta particolarmente interessante per la facilità di accesso, la vicinanza ai principali servizi e il buon bacino di utenza, rendendo l’immobile adatto sia a utilizzo diretto sia a operazione di sviluppo immobiliare. 




Caratteristiche immobile:
Codice inserzione: 1767822018
Rif. Annuncio: PAU4040801
Provincia: Udine
Comune: Tavagnacco
Superficie (Mq) : 1200 Mq.
Tipo immobile: Terreni

Costi:
Prezzo € 360.000


Efficienza energetica:
Classe energetica: Immobile non soggetto all'obbligo di certificazione