home page > Annunci immobiliari in Italia > Friuli-Venezia Giulia > Udine > Tricesimo > Case e ville indipendenti in vendita > Scheda immobile

Case e ville indipendenti in vendita a Tricesimo

COMPILA IL MODULO SOTTOSTANTE PER RICEVERE MAGGIORI INFORMAZIONI







Invia la richiesta ad altre agenzie
Accetto il trattamento dei miei dati



Immobigo srl

Via nazionale
33010 Tavagnacco (UD)

04321598035    Riferimenti: Luca Sartori

Tricesimo
Prezzo: € 30.000
2
135



Descrizione:
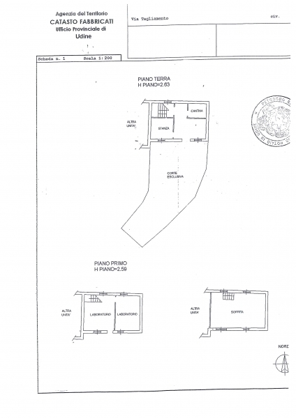
Casa in linea centrale suddivisa in tre piani fuori terra. Piano terra: ingresso, cucina abitabile, salotto e sottoscala. Primo piano: due camere. Secondo piano: soffitta dove si possono ricavare atre due camere ed un bagno o trasformarla in camera padronale con un bagno in suite e cabina armadio. Corte esclusiva recintata.caratteristiche: termo autonomo, un posto autometrature: 135mq, piano terra 45mq primo piano 45mq, secondo piano 45mq, giardino 100mqattestato di certificazione energetica in fase di studio vorresti lavorare in agenzia immobiliare? - ti piacerebbe diventare un agente immobiliare?guarda le nostre offerte di lavoro nella sezione del nostro sito ?lavora con noi?compila subito il format nella pagina oppure invia la tua candidatura direttamente al nostro indirizzo mail.sarai ricontattato entro 2gg classe energetica = in attesa




Caratteristiche immobile:
Codice inserzione: 1765323409
Rif. Annuncio: 0038_1091763
Provincia: Udine
Comune: Tricesimo
Superficie (Mq) : 135 Mq.
Tipo immobile: Case e ville indipendenti
Camere: 2

Costi:
Prezzo € 30.000


Efficienza energetica: