home page > Annunci immobiliari in Italia > Lazio > Roma > Albano Laziale > appartamenti in vendita > Scheda immobile

Appartamento in vendita a Albano Laziale

COMPILA IL MODULO SOTTOSTANTE PER RICEVERE MAGGIORI INFORMAZIONI







Invia la richiesta ad altre agenzie
Accetto il trattamento dei miei dati



Gial immobili srl

Piazza carducci, 20
00041 Albano Laziale (RM)

069324857

Albano Laziale
Prezzo: € 185.000
A1
1
1
51
1



Descrizione:
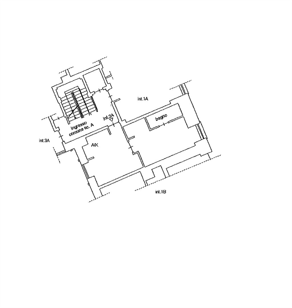
Via a. Saffi - nell'esclusivo 'palazzo pavoncello' proponiamo un appartamento posto al primo piano composto da ingresso, soggiorno con angolo cottura, camera e bagno; disponibilità di posto auto. L'edificio, sia nelle parti comuni che nei singoli appartamenti è stato realizzato con rifiniture di pregio, alta efficienza energetica e struttura antisismica. Palazzo pavoncello, nella città di albano laziale, rappresenta il più prestigioso e importante intervento di riqualificazione urbana realizzato in un centro storico ai castelli romani. L' edificio originario, risalente al 1700, è stato radicalmente modificato nella distribuzione interna permettendo una configurazione e un taglio degli alloggi più idoneo meglio rispondente alle attuali esigenze abitative. La struttura in acciaio assicura un'elevatissima prestazione e resistenza agli eventi sismici. L'impiantistica realizzata garantirà elevate prestazioni energetiche e ottimo confort abitativo, pur mantenendo le caratteristiche estetiche del palazzo originario. Sicurezza antisismica dell'acciaio l' unico edificio con una struttura antisismica di elevate prestazioni e tecnologie avanzate del centro storico. La struttura in acciaio oltre a presentare notevole flessibilità e leggerezza offre un'ottima resistenza all'azione dei terremoti. Le onde sismiche vengono dissipate con maggiore efficienza attraverso una struttura in acciaio. In diversi eventi sismici verificatisi nel passato si è dimostrata la maggiore resistenza di queste tipologie di costruzioni rispetto a quelle tradizionali più pesanti. Efficienza energetica gli appartamenti sono dotati di elementi ventilconvettori di design, dotati di silenziosissimi ventilatori tangenziali e piastra radiante (climatizzazione estiva ed invernale) provvisti di contabilizzatore diretto di energia termica, cronotermostato ambiente con tele lettura da remoto d.lgs.102/14; la produzione di acqua calda ed acqua fredda sarà garantita dalla presenza di un gruppo frigo in pompa di calore, completo di recuperatore di sanitaria sarà prodotto mediante bollitori dedicati, alimentati con un sistema di nuova generazione dotati inoltre di sistema per il trattamento anti legionella. La tecnologia offerta offrirà un elevato livello di confort abitativo e rispetto dell'ambiente dovuto al considerevole risparmio dei consumi e conseguente riduzione dei costi di gestione. L'area museale dei reperti rinvenuti della caserma della ii° legio parthica dei castra albana impreziosisce notevolmente lo stesso fabbricato. Gial è un' agenzia con una esperienza consolidata, si occupa dal 1974 di compravendite e locazioni immobiliari. L'intero gruppo opera ogni giorno con lo sguardo rivolto al futuro e alle crescenti esigenze del mercato. L'evoluzione del mercato immobiliare e una esigente aspettativa della clientela spingono inoltre gial immobili a porre quotidianamente un attenzione particolare al tema della formazione al fine di garantire un adeguata competenza ai professionisti del gruppo.




Caratteristiche immobile:
Codice inserzione: 1737435952
Rif. Annuncio: 1017
Provincia: Roma
Comune: Albano Laziale
Superficie (Mq) : 51 Mq.
Tipo immobile: Appartamento
Stato immobile: nuovo
Anno costruzione/ristrutturazione: 2022
Piano: 1
Camere: 1
Bagni: 1

Costi:
Prezzo € 185.000
Spese condominiali: € 908


Efficienza energetica:
Classe energetica: A1
Riscaldamento: autonomo
Tipologia riscaldamento: Metano