home page > Annunci immobiliari in Italia > Lazio > Roma > Ardea > Case e ville indipendenti in vendita > Scheda immobile

Case e ville indipendenti in vendita a Ardea

COMPILA IL MODULO SOTTOSTANTE PER RICEVERE MAGGIORI INFORMAZIONI







Invia la richiesta ad altre agenzie
Accetto il trattamento dei miei dati



Immobili all'asta

Viale sabotino 4
20121 Milano

0280888267    Riferimenti: Ivano De Natale

Ardea
Prezzo: € 87.750
F
1
1
80
1
1



Descrizione:
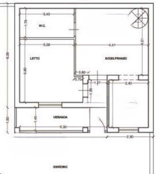
Villino all'asta in via della cinciarella, ardea (rm)si propone il diritto di piena proprietà di un'unità immobiliare ad uso residenziale sita in via della cinciarella n 27, nel comune di ardea (rm).nello specifico si tratta di un villino quadrifamiliare, elevato su due livelli, composto cosù:piano terra: - ingresso, - soggiorno-pranzo con cucina, - un bagno, - una camera da letto, - oltre veranda a livello e giardino esternopiano primo: - un unico vano adibito a soffitta - soggiorno sottostante.l'unità immobiliare viene completata da un posto auto scoperto adiacente al giardino esclusivo.l'unità immobiliare ha una superficie commerciale di mq 80.dati catastali:- fg. 53, part. 17 sub 506 e part. 4761, sub 502., categ. A/7,classe 3, vani 4, r.c. €. 537,12.- fg 53 part 17 sub 23, categoria c/6, classe 3, consistenza mq. 15.chi siamoimmobiliallasta.it aiuta le persone a comprare casa all'asta e migliorare la qualità della loro vita senza correre rischi, grazie ad una piattaforma specializzata in aste immobiliari sviluppata intorno alle vere esigenze di chi cerca casa all'asta e ad un team di 30 professionisti esperti dedicato, che ti guida passo passo in un acquisto sicuro e certificato da una tripla garanzia sull'immobile e sul servizio.a differenza delle agenzie troverai:+ varietà: gestiamo migliaia di immobili ogni mese+ tranquillità: tripla garanzia che ti tutela da ogni rischio sull'acquistoalcuni risultati oggettivi nell'ultimo anno e mezzo:- 8.600 immobili gestiti- +500 clienti portati all'asta- +200 case aggiudicate, per un valore totale di 15 milionicontattaci subito per parlare con uno dei nostri consulenti che ti aiuterà a trovare la tua casa all'asta senza correre rischi.




Caratteristiche immobile:
Codice inserzione: 1757903825
Rif. Annuncio: ST11875
Provincia: Roma
Comune: Ardea
Superficie (Mq) : 80 Mq.
Tipo immobile: Case e ville indipendenti
Stato immobile: usato
Anno costruzione/ristrutturazione: 1970
Piano: 1
Camere: 1
Posti auto scoperti: 1 posto auto
Bagni: 1

Costi:
Prezzo € 87.750


Efficienza energetica:
Classe energetica: F
Indice di prestazione energetica (EPgl): 175 kWh/mq annui
Riscaldamento: autonomo