home page > Annunci immobiliari in Italia > Lazio > Roma > Bracciano > Negozi uffici capannoni in vendita > Scheda immobile

Negozi uffici capannoni in vendita a Bracciano

COMPILA IL MODULO SOTTOSTANTE PER RICEVERE MAGGIORI INFORMAZIONI







Invia la richiesta ad altre agenzie
Accetto il trattamento dei miei dati



Quimmo agency

Via galileo galilei 6
48018 Faenza (RA)

0299944698

Bracciano
Prezzo: € 400.000
C
3
1115



Descrizione:
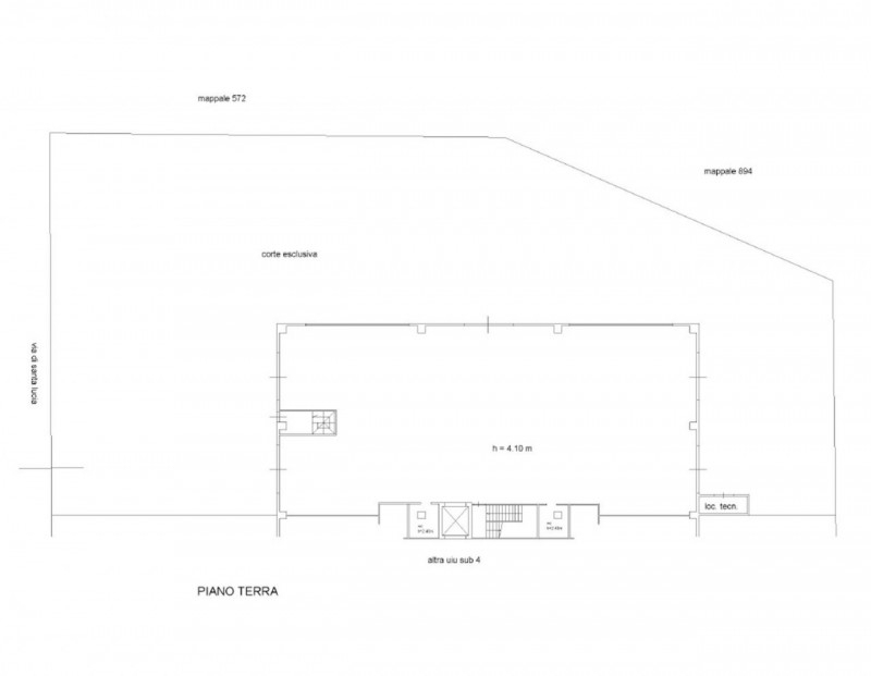
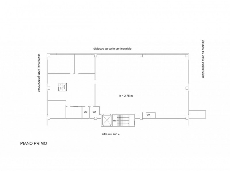
Proponiamo in vendita un capannone industriale su due livelli situato nel comune di bracciano, in via di cotognola, all'interno di un'area a destinazione industriale e commerciale, a circa 2,5 km dal centro abitato.l'immobile, realizzato nel 2007, si sviluppa sul fronte nord di un più ampio complesso, risultando libero su tre lati e dotato di un'ampia area esterna pertinenziale recintata di circa 1.310 mq, ideale per manovre, carico/scarico e stoccaggio.la distribuzione interna è funzionale e ben organizzata: al piano terra sono presenti circa 545 mq destinati a deposito/magazzino oltre a 15 mq di servizi; al piano primo si sviluppano ulteriori 360 mq di deposito/magazzino, 30 mq di servizi e 165 mq ad uso uffici, offrendo spazi versatili adatti a diverse esigenze operative e direzionali.l'immobile è dotato di cinque portoni carrabili (due sul lato est, due sul lato ovest e uno sul lato nord), che garantiscono massima accessibilità e facilità nelle operazioni logistiche. Le altezze interne sono pari a 4,10 m al piano terra e 2,75 m al piano primo. Il collegamento verticale è assicurato da un corpo scala esterno, oltre alla presenza di ascensore/montacarichi e scala comune alle unità.la soluzione rappresenta un'ottima opportunità per aziende produttive, logistiche o artigianali che necessitano di spazi funzionali, ben collegati e dotati di ampie aree di servizio esterne.




Caratteristiche immobile:
Codice inserzione: 1776912497
Rif. Annuncio: 2639198
Provincia: Roma
Comune: Bracciano
Superficie (Mq) : 1115 Mq.
Tipo immobile: Negozi uffici capannoni
Anno costruzione/ristrutturazione: 2007
Bagni: 3

Costi:
Prezzo € 400.000


Efficienza energetica:
Classe energetica: C
Riscaldamento: autonomo