home page > Annunci immobiliari in Italia > Lazio > Roma > Ciampino > Attici in vendita > Scheda immobile

Attici in vendita a Ciampino

COMPILA IL MODULO SOTTOSTANTE PER RICEVERE MAGGIORI INFORMAZIONI







Invia la richiesta ad altre agenzie
Accetto il trattamento dei miei dati



Santa caterina immobiliare

Via iv novembre n.13 - piano primo
00043 Ciampino (RM)

06.7912696

Ciampino
Prezzo: € 260.000
2
1
80
99



Descrizione:
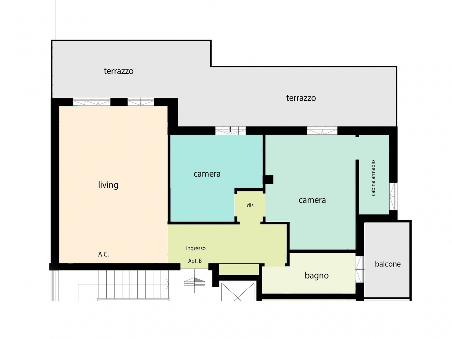
Ciampino - zona mura dei francesi - attico in vendita - immobiliare santa caterina di a. Scozzariattico 3 vani in corso di ristrutturazione integrale - camere da letto 2 - bagni 1 - superficie abitabile 70 m - terrazzo 37 m - balcone 5 m - superficie commerciale 90 m -in riservato comprensorio su via milano nella zona mura dei francesi del comune di ciampino, proponiamo in vendita un delizioso attico posto al piano 4° di edificio residenziale ricavato dal frazionamento di una più ampia unità immobiliare.distribuito su 70 mq interni ed oltre 40 m esterni, l'immobile rilegge in chiave moderna gli spazi originali dell'epoca di costruzione e si comporrà di: living con cucina a vista, due camere da letto, bagno, comodo ingresso / disimpegno, il tutto con affaccio sulla grande terrazza panoramica. Un piccolo balcone di servizio sarà di aiuto per i servizi sul lato minore della casa ospitando i nuovi impianti ed eventualmente una zona lavanderia esterna. la ristrutturazione appena iniziata prevede il rifacimento di tutti gli impianti, demolizioni e ricostruzione per realizzare le nuove disposizioni interne, posa in opera di rivestimenti moderni (a scelta per l'acquirente fra una piccola ma curata selezione), infissi nuovi con doppio vetro camera volti al contenimento energetico, serrande elettriche, predisposizione per la climatizzazione interna in tutte le stanze, porte arredo e blindata all'ingresso, finiture accurate nei dettagli. il progetto di frazionamento nasce dal recupero di una grande unità abitativa rimasta ferma internamente al tempo di costruzione del fabbricato, con l'obbiettivo di ottenere una divisione funzionale in n. 2 (due) unità completamente speculari, autonome e già autorizzate. Ancora attuale è la possibilità di scegliere l'acquisto dell'una e/o dell'altra porzione scegliendo di conseguenza esposizione preferita o affaccio. possibilità di acquisto di un posto auto ricompreso all'interno dell'area di parcheggio condominiale riservata. Per visionare i progetti presso il nostro studio, riservare una visita in cantiere o avere maggiori informazioni non esitare a contattarci. Classe energetica: non indicata




Caratteristiche immobile:
Codice inserzione: 1776045115
Rif. Annuncio: ATTICO B RISTRUTTURATO 3 VANI MURA DEI FRANCESI
Provincia: Roma
Comune: Ciampino
Superficie (Mq) : 80 Mq.
Tipo immobile: Attici
Stato immobile: ristrutturato
Piano: Ultimo piano
Camere: 2
Bagni: 1
Terrazze: 2

Costi:
Prezzo € 260.000


Efficienza energetica:
Riscaldamento: autonomo