home page > Annunci immobiliari in Italia > Lazio > Roma > Ciampino > Attività commerciali in affitto > Scheda immobile

Attività commerciali in affitto a Ciampino

COMPILA IL MODULO SOTTOSTANTE PER RICEVERE MAGGIORI INFORMAZIONI







Invia la richiesta ad altre agenzie
Accetto il trattamento dei miei dati



Immobiliare santa caterina

Via iv novembre n.13 - piano primo
00043 Ciampino (RM)

06.7912696

Ciampino
Prezzo: info in agenzia
G
4
293
Ultimo piano



Descrizione:
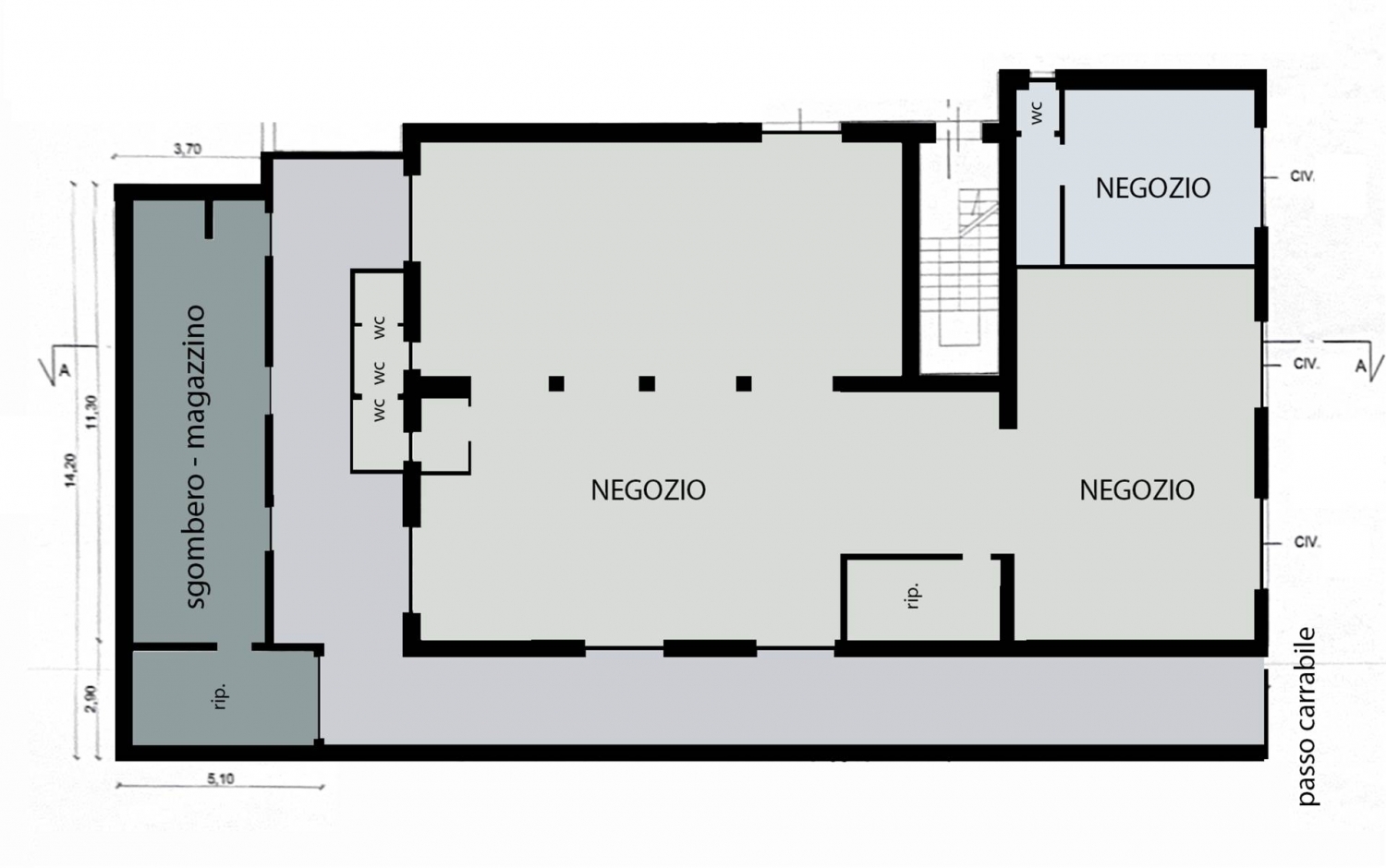
In affitto, prestigioso locale commerciale situato nel cuore di ciampino, in zona centralissima. questo immobile di 293 mq è ideale per diverse attività commerciali, si trova al piano terra e offre un ingresso riservato per dipendenti o mezzi e tre vetrine su strada che garantiscono massima visibilità e accessibilità per i clienti.questo locale, inserito in un contesto centrale, offre una posizione strategica per attrarre una clientela diversificata e avviare o ampliare la propria attività in una delle zone più dinamiche di ciampino. riserva una visita al locale commerciale per dare nuova vita al tuo progetto imprenditoriale. immobiliare santa caterina di angela scozzari - via iv novembre n ciampino (rm) + classe energetica: g




Caratteristiche immobile:
Codice inserzione: 1742784710
Rif. Annuncio: COMMERCIALE IN LOCAZIONE
Provincia: Roma
Comune: Ciampino
Superficie (Mq) : 293 Mq.
Tipo immobile: Attività commerciali
Stato immobile: usato
Piano: Ultimo piano
Bagni: 4

Costi:
Prezzo info in agenzia


Efficienza energetica:
Classe energetica: G
Riscaldamento: autonomo