home page > Annunci immobiliari in Italia > Lazio > Roma > Riano > Case e ville indipendenti in vendita > Scheda immobile

Case e ville indipendenti in vendita a Riano

COMPILA IL MODULO SOTTOSTANTE PER RICEVERE MAGGIORI INFORMAZIONI







Invia la richiesta ad altre agenzie
Accetto il trattamento dei miei dati



Immobili all'asta

Viale sabotino 4
20121 Milano

0280888267    Riferimenti: Ivano De Natale

Riano
Prezzo: € 34.952
F
1
2
199
1



Descrizione:
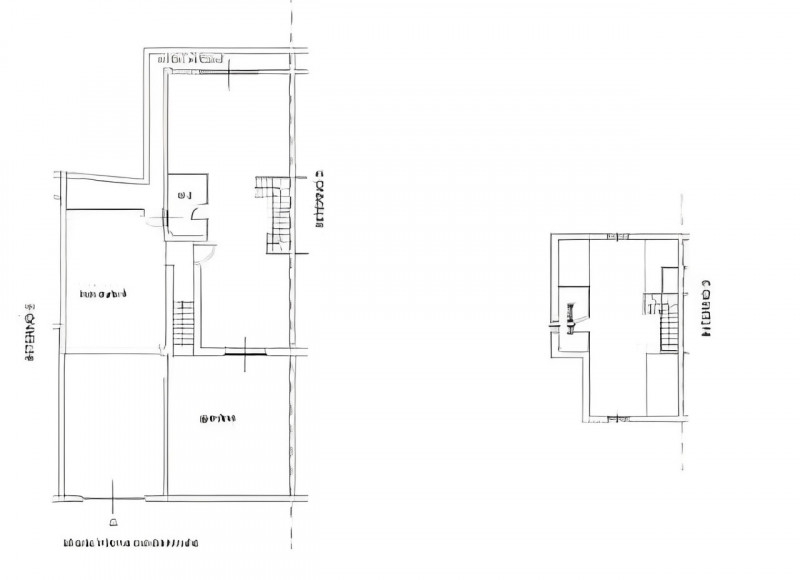
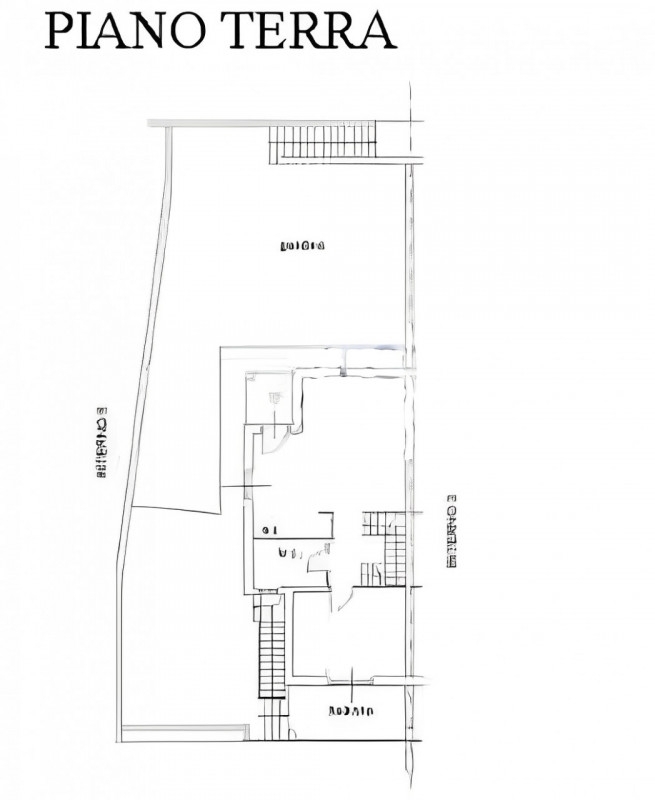
Abitazione all'asta in via bastianaccio, riano (rm)si propone unità immobiliare ad uso residenziale in via bastianaccio, tra il numero civico 108 e 110, comune di riano (rm).l'unità abitativa si sviluppa su tre livelli, piano seminterrato, piano terra, primo piano, cosù composti:• piano seminterrato: ambiente unico, bagno• piano terra: soggiorno con angolo cottura, disimpegno, bagno, camera da letto, portico/loggia• piano primo: soffitta, lavanderia. esternamente è presente una corte di pertinenza (13 mq). completa l'immobile un'autorimessa di 38 mq posta al livello seminterrato.identificazione catastalefoglio 2, particella 705, subalterno 512, cat. A/7, cl 4, cons.5 vani, sup. Cat. 105 mq, tot escluse aree esterne 105 mq, rendita € 542,28.chi siamoimmobiliallasta.it aiuta le persone a comprare casa all'asta e migliorare la qualità della loro vita senza correre rischi, grazie ad una piattaforma specializzata in aste immobiliari sviluppata intorno alle vere esigenze di chi cerca casa all'asta e ad un team di 30 professionisti esperti dedicato, che ti guida passo passo in un acquisto sicuro e certificato da una tripla garanzia sull'immobile e sul servizio.a differenza delle agenzie troverai:+ varietà: gestiamo migliaia di immobili ogni mese+ tranquillità: tripla garanzia che ti tutela da ogni rischio sull'acquistoalcuni risultati oggettivi nell'ultimo anno e mezzo:- 8.600 immobili gestiti- +500 clienti portati all'asta- +200 case aggiudicate, per un valore totale di 15 milionicontattaci subito per parlare con uno dei nostri consulenti che ti aiuterà a trovare la tua casa all'asta senza correre rischi.




Caratteristiche immobile:
Codice inserzione: 1759804748
Rif. Annuncio: ST5229
Provincia: Roma
Comune: Riano
Superficie (Mq) : 199 Mq.
Tipo immobile: Case e ville indipendenti
Stato immobile: usato
Anno costruzione/ristrutturazione: 2007
Piano: 1
Camere: 1
Garage: Doppio
Bagni: 2 + lavanderia

Costi:
Prezzo € 34.952


Efficienza energetica:
Classe energetica: F
Indice di prestazione energetica (EPgl): 175 kWh/mq annui
Riscaldamento: autonomo