home page > Annunci immobiliari in Italia > Liguria > La Spezia > Beverino > Negozi uffici capannoni in vendita > Scheda immobile

Negozi uffici capannoni in vendita a Beverino

COMPILA IL MODULO SOTTOSTANTE PER RICEVERE MAGGIORI INFORMAZIONI







Invia la richiesta ad altre agenzie
Accetto il trattamento dei miei dati



Immobiliare bertoli

Viale italia 663
19121 La Spezia

0187..518250

Beverino
Prezzo: € 350.000
G
3
720
Ultimo piano



Descrizione:
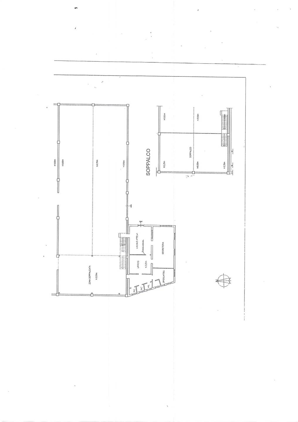
3172) capannone ad uso artigianale - commerciale - deposito, situato nel comune di beverino, in posizione strategica, a pochi chilometri dalle uscite autostradali di la spezia, ceparana e santo stefano magra.questa struttura offre un'ampia superficie di circa 600 mq al piano terra ed è dotata di carroponte, ideale per le vostre attività .il capannone dispone di 3 bagni, che garantiscono praticità per voi ed i vostri dipendenti. le condizioni generali del capannone sono buone.l'ingresso carrabile offre comodità ed un ufficio di 120 mq circa, al piano terra, garantisce uno spazio per le vostre attività amministrative.inoltre, al primo piano è presente un soppalco di 120 mq, circa, che può essere utilizzato come spazio aggiuntivo per uffici o magazzino.la struttura ha una corte privata di 1000 mq circa che offre ampie possibilità di parcheggio e manovra per i mezzi.eu.. 350.000,00e' inoltre disponibile un lotto più ampio.contattateci per maggiori informazioni. classe energetica: g epi: 223,37 kwh/m3 anno




Caratteristiche immobile:
Codice inserzione: 1776216723
Rif. Annuncio: 3172
Provincia: La Spezia
Comune: Beverino
Superficie (Mq) : 720 Mq.
Tipo immobile: Negozi uffici capannoni
Piano: Ultimo piano
Bagni: 3

Costi:
Prezzo € 350.000


Efficienza energetica:
Classe energetica: G
Indice di prestazione energetica (EPgl): 223.37 kWh/mc annui