home page > Annunci immobiliari in Italia > Liguria > La Spezia > Sarzana > appartamenti in vendita > Scheda immobile

Appartamento in vendita a Sarzana

COMPILA IL MODULO SOTTOSTANTE PER RICEVERE MAGGIORI INFORMAZIONI







Invia la richiesta ad altre agenzie
Accetto il trattamento dei miei dati



Progetti e case

Via picedi benettini, 4
19038 Sarzana (SP)

0187302367    3387047481    Riferimenti: luisa

Sarzana
Prezzo: € 129.000
G
2
130



Descrizione:
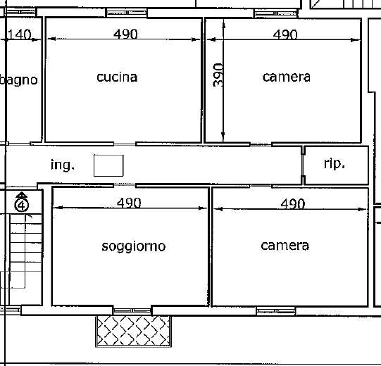
Ampio appartamento di circa 130 mq, posizione centrale e comodissimo a tutti i principali servizi, sito al primo piano ed ultimo di palazzina di sole 2 unità.nessuna spesa condominiale.l'immobile si presenta composto da: ingresso in corridoio, ampio soggiorno, cucina abitabile, due camere matrimoniali, servizio, ripostiglio oltre a sottotetto di proprietà esclusiva .soffitti alti 3 metri e sottotetto per ricavare ulteriori ambienti.da ristrutturareideale anche per ricavare 2 appartamenti indipendenti.richiesta € 129.000,00classe energetica: g 175 kwh/m3 a




Caratteristiche immobile:
Codice inserzione: 1758841866
Rif. Annuncio: V007812
Provincia: La Spezia
Comune: Sarzana
Superficie (Mq) : 130 Mq.
Tipo immobile: Appartamento
Camere: 2

Costi:
Prezzo € 129.000


Efficienza energetica:
Classe energetica: G
Indice di prestazione energetica (EPgl): 175 kWh/mq annui