home page > Annunci immobiliari in Italia > Liguria > La Spezia > Vezzano Ligure > Terreni in vendita > Scheda immobile

Terreni in vendita a Vezzano Ligure

COMPILA IL MODULO SOTTOSTANTE PER RICEVERE MAGGIORI INFORMAZIONI







Invia la richiesta ad altre agenzie
Accetto il trattamento dei miei dati



Giannecchini immobiliare snc

Via v.veneto 267 - p.zza g. Garibaldi 18
19121 La Spezia

0187.517377.0187.21014    340 8820753

Vezzano Ligure
Prezzo: € 220.000
6
4
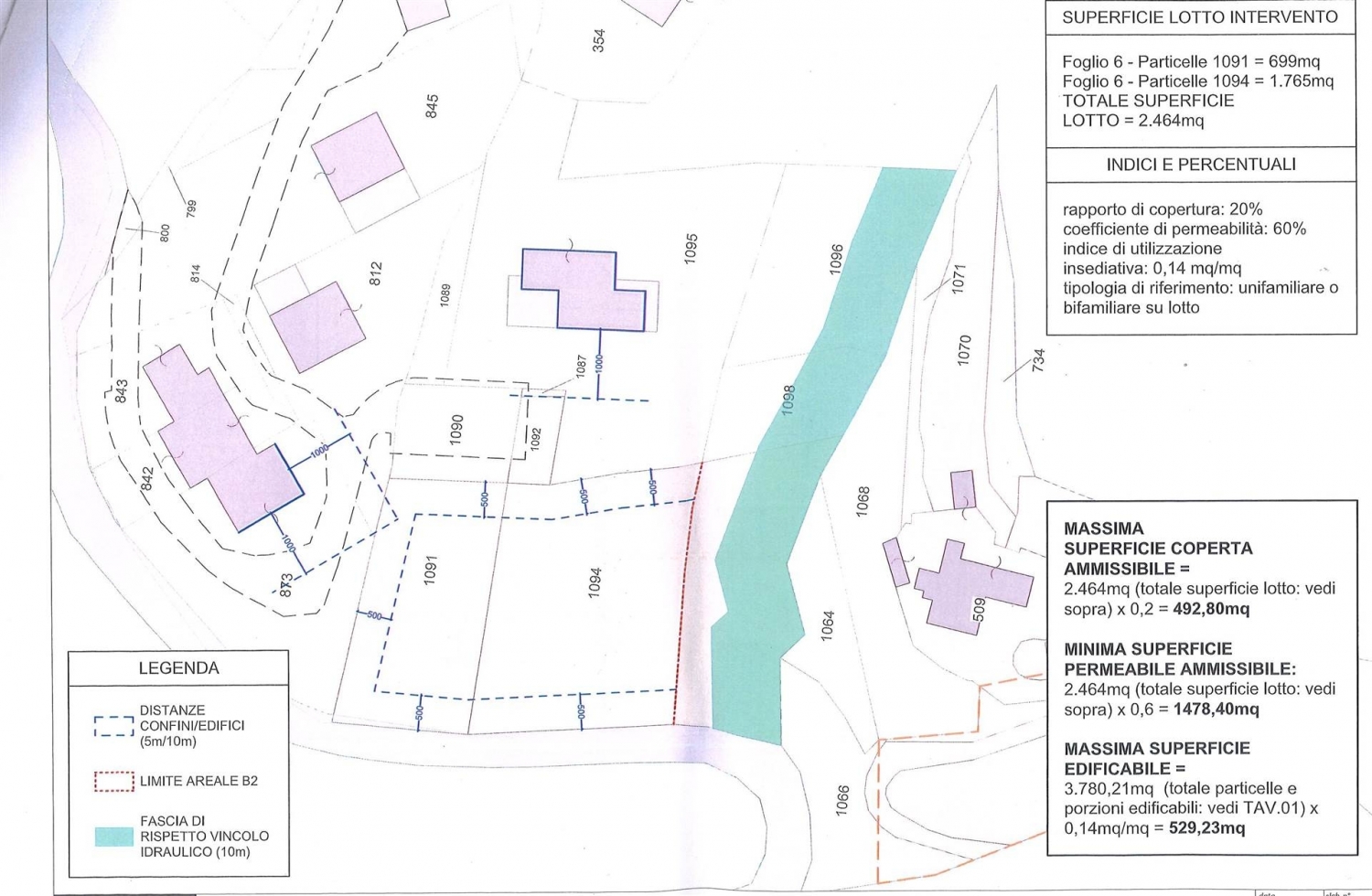
2464



Descrizione:
Giannecchini immobiliare vendecomune di vezzano ligure agli inizi della strada per valeriano in contesto residenziale terreno edificabile di mq 2464 su strada, buona accessibilità, panoramico, edificabilità complessiva mq 529 possibilità di realizzare due villini adiacenti su due livelli.studio progetto di massima in agenzia visionabilesenza alcun vincolo di progetto.richiesta trattabile classe energetica: non soggetto




Caratteristiche immobile:
Codice inserzione: 1767234712
Rif. Annuncio: 1361
Provincia: La Spezia
Comune: Vezzano Ligure
Zona: Valeriano  
Superficie (Mq) : 2464 Mq.
Tipo immobile: Terreni
Camere: 6
Bagni: 4

Costi:
Prezzo € 220.000


Efficienza energetica:
Classe energetica: Immobile non soggetto all'obbligo di certificazione