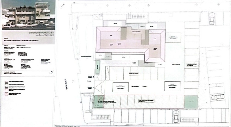
Descrizione:
Nel cuore di borghetto santo spirito, a soli 500 metri dal mare, proponiamo in vendita un ampio monolocale di 45 mq con terrazzo privato all'interno del prestigioso residence raffaello. Il complesso, moderno e raffinato, sorge in una zona in forte sviluppo, circondato da tutti i servizi essenziali e facilmente raggiungibile. Il residence si distingue per l'architettura contemporanea, le linee eleganti e gli spazi verdi curati, offrendo un'esperienza abitativa di alto livello sia come prima casa che come investimento per vacanze o locazioni brevi.l'appartamento, situato in uno stabile di classe energetica a, garantisce bassi consumi e spese condominiali contenute (120 euro/mese). Gli ambienti sono ampi, luminosi e pensati per il massimo comfort: cucina completa di elettrodomestici e piano a induzione, bagno arredato, lavanderia (ove presente) e possibilità di personalizzazione delle finiture con l'assistenza di interior designer dedicati. Il terrazzo privato permette di vivere momenti di relax all'aperto, godendo del clima mediterraneo tipico della riviera ligure.tra le dotazioni più innovative troviamo impianti autonomi a pompa di calore per riscaldamento e raffrescamento, sistema domotico per la gestione remota delle utenze, serramenti a taglio termico e anti effrazione, tapparelle motorizzate con telecomando. La sicurezza è garantita da portoncino blindato e standard antisismici elevati.il residence raffaello offre inoltre parcheggi privati, spazi comuni illuminati a led a risparmio energetico, rooftop con zona relax e vasca idromassaggio panoramica, giardini condominiali curati e possibilità di arredamento completo su richiesta. Ogni unità gode della garanzia decennale sulla stabilità dell'edificio.questa soluzione rappresenta un'opportunità unica per chi desidera abitare o investire in una delle località più ambite della riviera ligure, con pagamenti personalizzati e servizi esclusivi.non perdere questa occasione! contatta subito l'agenzia di riferimento per maggiori informazioni o per prenotare una visita.