home page > Annunci immobiliari in Italia > Liguria > Savona > Vado Ligure > Negozi uffici capannoni in vendita > Scheda immobile

Negozi uffici capannoni in vendita a Vado Ligure

COMPILA IL MODULO SOTTOSTANTE PER RICEVERE MAGGIORI INFORMAZIONI







Invia la richiesta ad altre agenzie
Accetto il trattamento dei miei dati



Soluzioni immobiliari srls

Via montenotte 45/r
17100 Savona

0198485270    Riferimenti: Michele Carlone

Vado Ligure
Prezzo: € 1.900.000
4000



Descrizione:
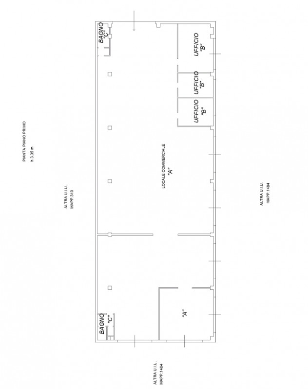
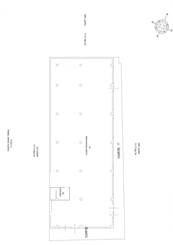
Scopri un'opportunità unica di investimento con questo ampio capannone situato nel cuore di vado ligure. Con una superficie totale di circa 4.000 mq, questa proprietà si trova in una posizione introvabile, all'uscita della superstrada e a pochi passi dal porto e dall'autostrada, rendendola ideale per qualsiasi attività commerciale o industriale.la struttura è dotata di spazi esterni generosi, facilmente accessibili anche da mezzi pesanti, garantendo la massima comodità per le operazioni logistiche e il carico/scarico delle merci. All'interno del capannone troverai uffici funzionali e bagni, per soddisfare tutte le esigenze lavorative.vado ligure è conosciuta per la sua vivace economia portuale ed è strategicamente posizionata tra savona e spotorno, offrendo collegamenti eccellenti sia via terra che via mare. La zona circostante offre numerose opportunità commerciali grazie alla presenza di altre aziende e servizi nelle vicinanze.




Caratteristiche immobile:
Codice inserzione: 1775702438
Rif. Annuncio: A1209
Provincia: Savona
Comune: Vado Ligure
Superficie (Mq) : 4000 Mq.
Tipo immobile: Negozi uffici capannoni

Costi:
Prezzo € 1.900.000


Efficienza energetica: