home page > Annunci immobiliari in Italia > Lombardia > Bergamo > Gandino > Case e ville indipendenti in vendita > Scheda immobile

Case e ville indipendenti in vendita a Gandino

COMPILA IL MODULO SOTTOSTANTE PER RICEVERE MAGGIORI INFORMAZIONI







Invia la richiesta ad altre agenzie
Accetto il trattamento dei miei dati



Immobili all'asta

Viale sabotino 4
20121 Milano

0280888267    Riferimenti: Ivano De Natale

Gandino
Prezzo: € 115.345
F
3
3
223
Piano terra



Descrizione:
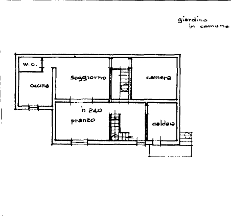
Casa singola all'asta in via albarotti, gandino (bg)si propone il diritto di piena proprietà di un'unità immobiliare ad uso residenziale sita in via albarotti n 20, nel comune di gandino (bg). nello specifico di una casa singola, composta cosù:piano terra:- ingresso, - cucina, - pranzo-soggiorno,- disimpegno zona notte, - due camere, - due bagni, - un balcone- boxpiano seminterrato:- cucina, - pranzo, - soggiorno, - camera, - bagno, - disimpegno zona scala, - piccolo disimpegno, - locale caldaiapiano interrato:- cantinala superficie commerciale lorda dell'unità abitativa è di mq 233dati catastali:-foglio 12, particella 1903, subalterno 3, categoria a/7, classe 1, consistenza 5 vani, piano t, rendita euro 413,17;-foglio 12, particella 1903, subalterno 4, piano s1, categoria a/7, classe 1, consistenza 5 vani, rendita euro 413,17;-foglio 12, particella 1903, subalterno 2, piano t, categoria c/6, classe 2, rendita euro 33,98.chi siamoimmobiliallasta.it aiuta le persone a comprare casa all'asta e migliorare la qualità della loro vita senza correre rischi, grazie ad una piattaforma specializzata in aste immobiliari sviluppata intorno alle vere esigenze di chi cerca casa all'asta e ad un team di 30 professionisti esperti dedicato, che ti guida passo passo in un acquisto sicuro e certificato da una tripla garanzia sull'immobile e sul servizio.a differenza delle agenzie troverai:+ varietà: gestiamo migliaia di immobili ogni mese+ tranquillità: tripla garanzia che ti tutela da ogni rischio sull'acquistoalcuni risultati oggettivi nell'ultimo anno e mezzo:- 8.600 immobili gestiti- +500 clienti portati all'asta- +200 case aggiudicate, per un valore totale di 15 milionicontattaci subito per parlare con uno dei nostri consulenti che ti aiuterà a trovare la tua casa all'asta senza correre rischi.




Caratteristiche immobile:
Codice inserzione: 1765251783
Rif. Annuncio: ST12288
Provincia: Bergamo
Comune: Gandino
Superficie (Mq) : 223 Mq.
Tipo immobile: Case e ville indipendenti
Stato immobile: usato
Anno costruzione/ristrutturazione: 1960
Piano: Piano terra
Camere: 3
Garage: Singolo
Bagni: 3

Costi:
Prezzo € 115.345


Efficienza energetica:
Classe energetica: F
Indice di prestazione energetica (EPgl): 175 kWh/mq annui
Riscaldamento: autonomo