Descrizione:
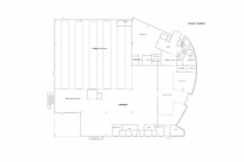
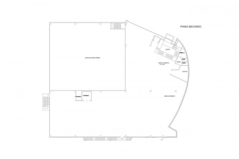
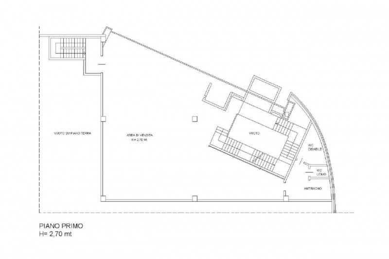
All'interno della industriale di recente costruzione a nord-ovest del comune, proponiamo in vendita un ampio capannone di 4.132 mq commerciale-artigianale con area esterna di pertinenza.l'immobile risulta composto come segue:pianoterra: ingresso con zona uffici e servizi igienici, area di vendita e locali accessori, ampio deposito, con relativi servizi igienici e spogliatoi, oltre a zona porticata di carico/scarico;piano primo: adibito ad area deposito espositiva con bagno ed antibagno;piano secondo : adibito ad area deposito espositiva con ufficio, tre bagni ed antibagno;sulla copertura infine è presente un locale impianti tecnologici, mentre esternamente è presente una cabina elettrica. L'ingresso all'immobile avviene dalle strade limitrofe tramite due ingressi carrai. La zona è raggiungibile dalla viabilità comunale ed è dotata di un buon numero di parcheggi ad uso pubblico. Le principali infrastrutture pubbliche e private sono facilmente raggiungibili e collegate da mezzi pubblici.certificato energetico in corso di redazione.