home page > Annunci immobiliari in Italia > Lombardia > Bergamo > Zanica > Case e ville indipendenti in vendita > Scheda immobile

Case e ville indipendenti in vendita a Zanica

COMPILA IL MODULO SOTTOSTANTE PER RICEVERE MAGGIORI INFORMAZIONI







Invia la richiesta ad altre agenzie
Accetto il trattamento dei miei dati



Consulenze casa

Via s.f. Neri
24059 Urgnano (BG)

34789.15.337    3478915337    Riferimenti: Roberto Radici

Zanica
Prezzo: € 430.000
3
140



Descrizione:
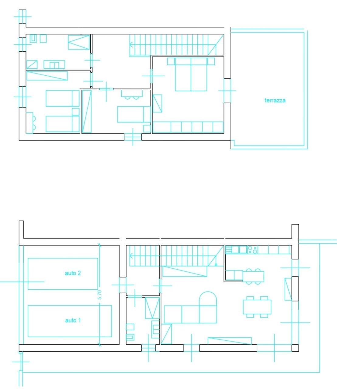
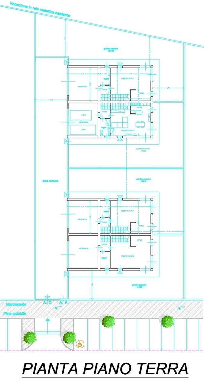
Urgnano, 5 minuti da zanica, ville bifamiliari completamente indipendenti disposte su 2 piani fuori terra da 70mq ciascuno + box doppio in larghezza da 37mq a livello strada (no interrato).urgnano, nuove ville di prossima edificazione, trattasi di bifamiliare con le 2 unità abitative che si sviluppano ciascuna con superficie abitativa di 140mqsu 2 livelli con tipologia quadrilocale (3 camere, 2 bagni al piano, ripostiglio, soggiorno e cucina). risultano ovviamente libere sui 3 lati e con giardini di proprietà da 162mq (villa 2 ovest) a 232mq (villa 1 est).ottimo il capitolato delle opere e delle finiture interne che rispecchia la pluriennale esperienza dell'impresa costruttrice che si è sempre distinta per offrire alla sua clientela un prodotto di grande qualità in grado di mantenere prestazioni e valore nel tempo.particolare attenzione sarà posta alla coibentazione per evitare anche i ponti termici, ma anche all'isolamento acustico per evitare la diffusione di rumori fra le unità abitative grazie all'utilizzo di specifiche tecniche costruttive e materiali fonoassorbenti. Certificazione energetica valore di progetto previsto minimo in classe a2 (probabile a4 definitivo dopo il fine lavori).le ville sono pensate per offrire il massimo confort abitativo ai clienti con possibilità di personalizzazione per quanto riguarda la disposizione degli spazi interni e le finiture sempre partendo da un capitolato di ottimo livello.struttura portante in cemento armato, tavolati interni in muratura, isolamento a cappotto, serramenti in pvc con profili sottili a basso emissivo con gas argon e zero manutenzione, avvolgibili in alluminio motorizzati con predisposizione per integrazione con impianto di domotica.pavimenti e rivestimenti 40€/mq posati, sanitari sospesi, videocitofono, impianto satellitare, riscaldamento a pavimento con impianto a pompa di calore (con possibilità gestire anche il raffrescamento con split idronici o, con sovrapprezzo, a pavimento), vmc (ventilazione meccanica controllata), impianto fotovoltaico 4,5kw/come previsto ex legge 10/91 (no metano), etc.villa n° 2 esposta sud/ovest/nord: prezzo 430.000€ con giardino da 162mqvilla n° 1 esposta sud/est/nord: prezzo 440.000€. Questa villa ha anche area di proprietà di circa 40mq di fronte all'ingresso del suo box oltre a giardino da 232mq.possibilòità di massima personalizzazione oltre che potere optare per soluzioni da 151mq abitativi (75mq per piano) con prezzi pari a 460.000€ per la villa 1 e 470.000€ per la villa 2.rendering e progetti pubblicati sono da intendersi a titolo indicativo e non vincolanti contrattualmente.per maggiori informazioni classe energetica:




Caratteristiche immobile:
Codice inserzione: 1772669506
Rif. Annuncio: V001316
Provincia: Bergamo
Comune: Zanica
Superficie (Mq) : 140 Mq.
Tipo immobile: Case e ville indipendenti
Camere: 3

Costi:
Prezzo € 430.000


Efficienza energetica: