Descrizione:
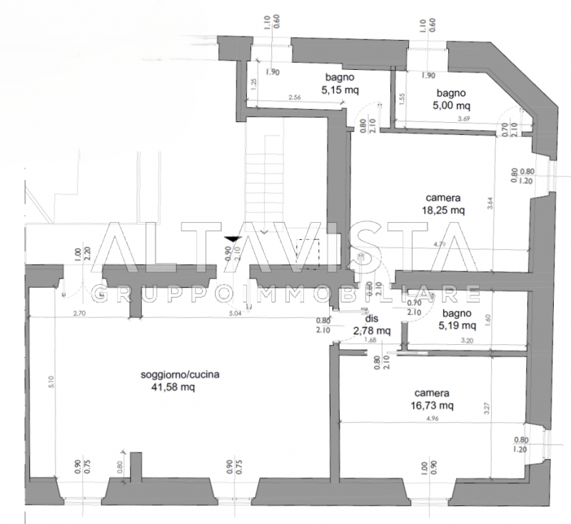
Altavista gruppo immobiliare propone in vendita un affascinante trilocale al secondo piano di un elegante palazzo storico nel cuore di gavardo, completamente rinnovato pur mantenendo intatto il suo charme originario.l'edificio, risalente a prima del 1967, è stato oggetto di un attento intervento di ristrutturazione e sopraelevazione, che ha saputo coniugare il fascino dell'architettura d'epoca con soluzioni costruttive e finiture di ultima generazione.l'appartamento si apre su una luminosa zona giorno con cucina a vista, resa ancora più accogliente dall'accesso diretto al terrazzo esclusivo affacciato sull'area verde interna.la zona notte è composta da due ampie camere matrimoniali, una delle quali dotata di bagno privato, a cui si aggiungono altri due bagni ben rifiniti.elemento distintivo della proprietà è il suggestivo cortile interno, un angolo verde condiviso, impreziosito da piante decorative e da un moderno giardino verticale, che dona respiro e modernità all'intero complesso.per ulteriori informazioni o per fissare un appuntamento, contattaci al numero: prezzo richiesto: € 270.000,00rif.:bz2192altavista gruppo immobiliare precisa che nonostante l'attenzione nell'inserimento dei dati dell'annuncio proposto, potrebbero essere presenti errori e/o omissioni. Il presente annuncio è soltanto descrittivo e non rappresenta un impegno contrattuale, per tale motivo vi preghiamo di contattarci per verificare la disponibilità dell'immobile e dei dati inseriti. Siamo a disposizione per la visione dell'immobile previo appuntamento.