home page > Annunci immobiliari in Italia > Lombardia > Brescia > Gottolengo > Negozi uffici capannoni in vendita > Scheda immobile

Negozi uffici capannoni in vendita a Gottolengo

COMPILA IL MODULO SOTTOSTANTE PER RICEVERE MAGGIORI INFORMAZIONI







Invia la richiesta ad altre agenzie
Accetto il trattamento dei miei dati



Quimmo agency

Via galileo galilei 6
48018 Faenza (RA)

0299944698

Gottolengo
Prezzo: € 350.000
B
3
546



Descrizione:
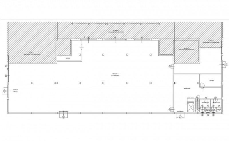
Proponiamo in vendita un ampio negozio situato a gottolengo, in via bonfiglio perini 4, inserito in un contesto facilmente accessibile e con buona visibilità.l'immobile si sviluppa prevalentemente in un grande spazio open space, ideale per attività commerciali, espositive o di vendita al dettaglio, caratterizzato da superfici ampie e facilmente modulabili in base alle esigenze operative. La presenza di locali accessori funzionali consente una gestione completa dell'attività, con aree dedicate a ufficio, magazzino, cucina e servizi igienici, oltre a spogliatoi, rendendo la soluzione adatta anche ad attività che richiedano organizzazione interna e supporti logistici.sono presenti ingressi distinti, utili per la gestione separata di clientela, personale e carico/scarico merci, elemento che aumenta l'efficienza operativa del locale. Le dimensioni generose e la distribuzione razionale degli spazi rendono l'immobile particolarmente versatile, adatto a molteplici destinazioni commerciali o professionali.una proposta interessante per chi è alla ricerca di un negozio di ampia metratura, pronto ad accogliere attività strutturate in una posizione comoda e ben collegata.




Caratteristiche immobile:
Codice inserzione: 1775530006
Rif. Annuncio: 2638637
Provincia: Brescia
Comune: Gottolengo
Superficie (Mq) : 546 Mq.
Tipo immobile: Negozi uffici capannoni
Stato immobile: usato
Bagni: 3

Costi:
Prezzo € 350.000


Efficienza energetica:
Classe energetica: B
Riscaldamento: autonomo