home page > Annunci immobiliari in Italia > Lombardia > Brescia > Isorella > Negozi uffici capannoni in vendita > Scheda immobile

Negozi uffici capannoni in vendita a Isorella

COMPILA IL MODULO SOTTOSTANTE PER RICEVERE MAGGIORI INFORMAZIONI







Invia la richiesta ad altre agenzie
Accetto il trattamento dei miei dati



Agenzia imm.re carpenedolo srl

Via xx settembre 41
25013 Carpenedolo (BS)

0309966780    Riferimenti: Agenzia Imm.re Carpenedolo Srl

Isorella
Prezzo: € 400.000
2000



Descrizione:
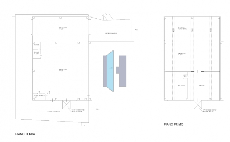
Su lotto di circa 2000mq n.2 capannoni di circa 758mq e 600mq commerciali.unità 1: immobile su due livelli, al piano terra (458mq circa) abbiamo una prima parte con altezza 5.00mt ed un secondo ambiente di altezza di 9.20mt caratterizzato da doppio accesso esterno in corte esclusiva.al piano primo (300mq circa) archivio e magazzino con altezza 3.50mt.l'immobile è inoltre dotato di impianto fotovoltaico dal 2011, ascensore e corte esclusiva.unità 2: immobile (di circa 600mq) su unico livello con altezza di 9.05mt con n.2 ufficio, spogliatoio e bagni. Di pertinenza corte esclusiva.




Caratteristiche immobile:
Codice inserzione: 1764562224
Rif. Annuncio: ISORELLA400
Provincia: Brescia
Comune: Isorella
Superficie (Mq) : 2000 Mq.
Tipo immobile: Negozi uffici capannoni
Anno costruzione/ristrutturazione: 2003

Costi:
Prezzo € 400.000


Efficienza energetica:
Classe energetica: Immobile non soggetto all'obbligo di certificazione
Riscaldamento: autonomo